My Search Tools:

$559,000 - 123 Lafayette Point, Crossville

3
Bedrooms
Baths
2,776
SQ. Feet
0.22
Acres

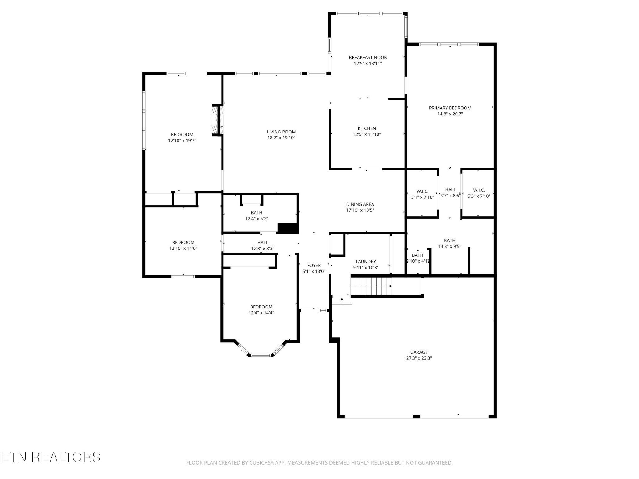
''Welcome Home'' This 2776 sq ft town home with its split floorplan is designed for privacy. The dedicated guest area and Master Suite area ensures privacy and comfort for everyone. The semi-open concept design seamlessly blends Living, Dining, and Kitchen Area giving a small amount of privacy to the'' host/ hostess with the mostest'' preparing a feast. The Living Area presence two areas with a see-through fireplace adding a joyful glow to the space. The large ornate floor to ceiling window showcases the outdoors as a natural backdrop to life inside the space. The seller is open to a flooring credit. The Master Suite offers large windows; custom designed his/her closets for functional storage; the ensuite bath area features a tiled walk in shower; maple storage cabinets; his/her sinks; and a ''Command Center'' for those who love privacy. The upstairs Bonus Area is an additional versatile space ideal for anything fitting your lifestyle: exercise area; art studio; extra guest area; home office; or a media room. Designed as an end unit offering a bit more privacy. With it thoughtful floorplan this townhome is perfect for those seeking to blend comfort and functionality with a tweek of no maintenance for an active lifestyle in a growing resort, Fairfield Glade Resort Community. ''Come On Home'' Buyer to verify information before making an informed offer.

Essential Information

  • MLS® #:
    3134540
  • Price:
    $559,000
  • Bedrooms:
    3
  • Bathrooms:
    2.50
  • Full Baths:
    2
  • Half Baths:
    1
  • Square Footage:
    2,776
  • Acres:
    0.22
  • Year Built:
    2007
  • Type:
    Residential
  • Sub-Type:
    Single Family Residence
  • Style:
    Traditional
  • Status:
    Active

Community Information

  • Address:
    123 Lafayette Point
  • Subdivision:
    Glastowbury Pointe Twnhs
  • City:
    Crossville
  • County:
    Cumberland County, TN
  • State:
    TN
  • Zip Code:
    38558

Amenities

  • Amenities:
    Pool, Golf Course, Playground
  • Utilities:
    Electricity Available, Water Available
  • Parking Spaces:
    2
  • # of Garages:
    2
  • View:
    Lake

Interior

  • Interior Features:
    Walk-In Closet(s), Pantry
  • Appliances:
    Dishwasher, Disposal, Dryer, Microwave, Range, Refrigerator, Washer
  • Heating:
    Central, Electric, Heat Pump, Propane
  • Cooling:
    Central Air
  • Fireplace:
    Yes
  • # of Fireplaces:
    1

Exterior

  • Lot Description:
    Other, Cul-De-Sac, Wooded, Level
  • Construction:
    Frame, Vinyl Siding, Other, Brick

School Information

  • Elementary:
    Crab Orchard Elementary
  • Middle:
    Crab Orchard Elementary
  • High:
    Stone Memorial High School

Additional Information

  • Date Listed:
    February 23rd, 2026
  • Days on Market:
    56

Listing Details

  • Listing Office:
    Crye-leike Brown Realty

The data relating to real estate for sale on this web site comes in part from the Internet Data Exchange Program of RealTracs Solutions. Real estate listings held by brokerage firms other than Botsko Properties Inc. are marked with the Internet Data Exchange Program logo or thumbnail logo and detailed information about them includes the name of the listing brokers.

Disclaimer: All information is believed to be accurate but not guaranteed and should be independently verified. All properties are subject to prior sale, change or withdrawal.

Copyright 2026 RealTracs Solutions.

Listing information last updated on April 22nd, 2026 at 3:39am CDT.