My Search Tools:

$432,160 - 241 Nesbitt Lane, Madison

4
Bedrooms
Baths
1,835
SQ. Feet
2026
Year Built

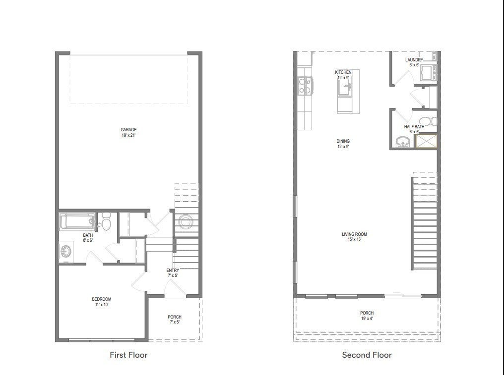
JOIN US APRIL 11TH FOR OUR SPRING LAUNCH EVENT TO EARN EXCLUSIVE INCENTIVES ON ALL LEGACY SOUTH HOMES!! Resort-style, gated living minutes from the heart of East Nashville sets this home apart, with a pool, gym, and dog park creating a true lock-and-leave lifestyle inside Chadwick in Madison. First-phase pricing adds immediate value, positioning this opportunity ahead of the market while inventory is still limited. Inside, the Sutton delivers true single-family living with three bedrooms and a smart three-story layout that separates daily living, entertaining, and private retreats. The second-floor open kitchen, dining, and living space is designed for hosting, with natural light, a walk-out balcony, and dedicated pantry and laundry that keep life organized. Upstairs, the private primary suite and secondary bedrooms create quiet separation from the main living level, while the attached two-car garage adds storage and everyday convenience rarely found this close to the city. This is a completed home, allowing buyers to skip the wait and move straight into a thoughtfully designed community built for connection and ease.

Essential Information

  • MLS® #:
    3148406
  • Price:
    $432,160
  • Bedrooms:
    4
  • Bathrooms:
    3.50
  • Full Baths:
    3
  • Half Baths:
    1
  • Square Footage:
    1,835
  • Acres:
    0.00
  • Year Built:
    2026
  • Type:
    Residential
  • Sub-Type:
    Horizontal Property Regime - Detached
  • Style:
    Contemporary
  • Status:
    Active

Community Information

  • Address:
    241 Nesbitt Lane
  • Subdivision:
    The Chadwick
  • City:
    Madison
  • County:
    Davidson County, TN
  • State:
    TN
  • Zip Code:
    37115

Amenities

  • Amenities:
    Dog Park, Gated, Pool, Sidewalks, Underground Utilities
  • Utilities:
    Water Available
  • Parking Spaces:
    2
  • # of Garages:
    2
  • Garages:
    Alley Access

Interior

  • Appliances:
    Electric Oven, Electric Range, Dishwasher, Disposal, Microwave, Refrigerator, Stainless Steel Appliance(s)
  • Heating:
    Central
  • Cooling:
    Central Air
  • # of Stories:
    3

Exterior

  • Exterior Features:
    Balcony
  • Lot Description:
    Level
  • Roof:
    Shingle
  • Construction:
    Fiber Cement

School Information

  • Elementary:
    Stratton Elementary
  • Middle:
    Madison Middle
  • High:
    Hunters Lane Comp High School

Additional Information

  • Date Listed:
    March 13th, 2026
  • Days on Market:
    18

Listing Details

  • Listing Office:
    Legacy South Brokerage

The data relating to real estate for sale on this web site comes in part from the Internet Data Exchange Program of RealTracs Solutions. Real estate listings held by brokerage firms other than Botsko Properties Inc. are marked with the Internet Data Exchange Program logo or thumbnail logo and detailed information about them includes the name of the listing brokers.

Disclaimer: All information is believed to be accurate but not guaranteed and should be independently verified. All properties are subject to prior sale, change or withdrawal.

Copyright 2026 RealTracs Solutions.

Listing information last updated on March 31st, 2026 at 8:39pm CDT.