My Search Tools:

$2,950,000 - 1013 Gilmore Ave, Nashville

5
Bedrooms
4
Baths
4,306
SQ. Feet
0.21
Acres

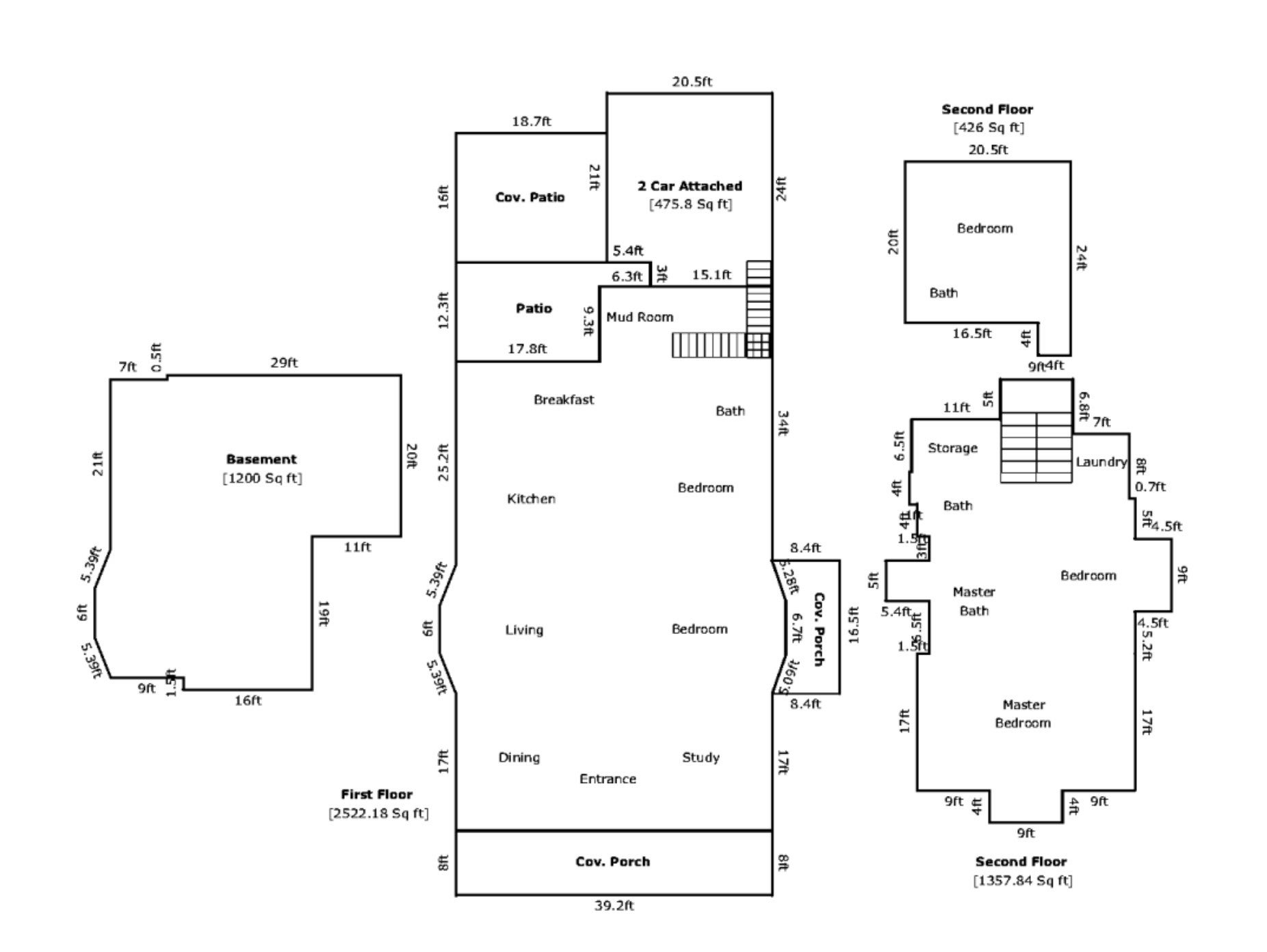
COMING SOON: Welcome to this historic beauty, nestled on a picturesque, tree-lined street in the heart of Nashville’s most sought-after neighborhood, 12South. This luxury property previously underwent a full renovation to the studs plus a substantial addition, blending classic neighborhood charm with modern amenities and open-concept living. This 4,306 square foot home features: 5 Bedrooms + Office, 4 Baths, 4 Original Fireplaces, Custom Kitchen and a 2-Car Attached Garage. Thoughtfully finished in a timeless design, the historic charm of this unique home has been preserved, while updating the floor plan to create an elegant flow. The custom-designed kitchen features stunning Danby marble countertops, Jenn Air professional series appliances and double ovens. The main level showcases this home’s expansive and airy feel with soaring 11' high ceilings, 8' tall doors, 7' tall windows, 4 fireplaces with circa 1905 mahogany mantles and original refinished hardwood floors. The attached two-car garage and driveway are located within the remote-access fence gate for full privacy and secure entry. Complete backyard renovation features new screened porch with gas fireplace, outdoor kitchen, pavers, landscaping, driveway and privacy fence. In addition to the energy-efficiency that accompanies this rare, three-brick thick original construction, the home has been further upgraded with the application of spray foam insulation in all walls and attics. New roof installed in 2021. Level, corner lot. Spacious unfinished basement ideal for additional storage. Enjoy the advantages of living in Nashville’s most charming, walkable neighborhood with 12South’s gourmet restaurants and upscale shopping just one block from your doorstep. Seize this rare opportunity to secure a luxury property in the heart of the most coveted community in Nashville. Owner/Agent.

Essential Information

  • MLS® #:
    3145964
  • Price:
    $2,950,000
  • Bedrooms:
    5
  • Bathrooms:
    4.00
  • Full Baths:
    4
  • Square Footage:
    4,306
  • Acres:
    0.21
  • Year Built:
    1905
  • Type:
    Residential
  • Sub-Type:
    Single Family Residence
  • Status:
    Coming Soon / Hold

Community Information

  • Address:
    1013 Gilmore Ave
  • Subdivision:
    Montrose Place
  • City:
    Nashville
  • County:
    Davidson County, TN
  • State:
    TN
  • Zip Code:
    37204

Amenities

  • Amenities:
    Sidewalks
  • Utilities:
    Electricity Available, Water Available
  • Parking Spaces:
    2
  • # of Garages:
    2
  • Garages:
    Garage Door Opener, Garage Faces Rear

Interior

  • Interior Features:
    Built-in Features, Entrance Foyer, Extra Closets, High Ceilings, Open Floorplan, Pantry, Redecorated, Walk-In Closet(s), High Speed Internet
  • Appliances:
    Built-In Electric Oven, Double Oven, Gas Oven, Gas Range, Dishwasher, Disposal, Ice Maker, Microwave, Refrigerator, Stainless Steel Appliance(s), Smart Appliance(s), Water Purifier
  • Heating:
    Central, Heat Pump
  • Cooling:
    Central Air, Electric
  • Fireplace:
    Yes
  • # of Fireplaces:
    4
  • # of Stories:
    2

Exterior

  • Exterior Features:
    Gas Grill, Smart Camera(s)/Recording, Smart Light(s)
  • Lot Description:
    Corner Lot, Level
  • Roof:
    Asphalt
  • Construction:
    Brick, Hardboard Siding

School Information

  • Elementary:
    Waverly-Belmont Elementary School
  • Middle:
    John Trotwood Moore Middle
  • High:
    Hillsboro Comp High School

Additional Information

  • Date Listed:
    March 8th, 2026

Listing Details

  • Listing Office:
    Benchmark Realty, Llc

The data relating to real estate for sale on this web site comes in part from the Internet Data Exchange Program of RealTracs Solutions. Real estate listings held by brokerage firms other than Botsko Properties Inc. are marked with the Internet Data Exchange Program logo or thumbnail logo and detailed information about them includes the name of the listing brokers.

Disclaimer: All information is believed to be accurate but not guaranteed and should be independently verified. All properties are subject to prior sale, change or withdrawal.

Copyright 2026 RealTracs Solutions.

Listing information last updated on March 10th, 2026 at 3:40pm CDT.