My Search Tools:

$1,100,000 - 3407 Clarksville Pike, Nashville

-
Bedrooms
-
Baths
N/A
SQ. Feet
0.45
Acres

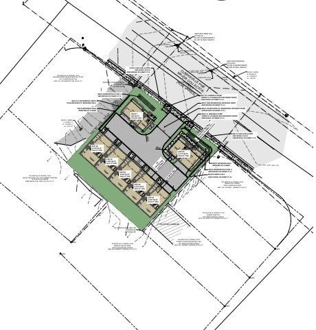
Rare shovel-ready development opportunity in Nashville’s growing urban core. 3407 Clarksville Pike is a CL-zoned commercial lot fully approved and build-ready for seven non-owner occupied short-term rental units (NOO STRP / Airbnb). This offering includes permits in hand, fees paid, and a complete set of plans, allowing a developer to begin construction immediately and skip the lengthy entitlement process. The current approved design consists of 7 units at approximately 2,100 square feet each, with potential for downtown skyline views. Seller has invested significant time and capital into the project, including roughly one year of civil engineering, planning, subdivision work, and permitting. In addition to the approved STR concept, the CL zoning also provides flexibility for other commercial or mixed-use development opportunities. With strong nearby new construction comps and major upside potential, this is an exceptional opportunity for investors, builders, and developers looking for a high-demand Nashville project with much of the heavy lifting already completed.

Essential Information

  • MLS® #:
    3143522
  • Price:
    $1,100,000
  • Bathrooms:
    0.00
  • Acres:
    0.45
  • Type:
    Land
  • Status:
    Active

Community Information

  • Address:
    3407 Clarksville Pike
  • Subdivision:
    commercial
  • City:
    Nashville
  • County:
    Davidson County, TN
  • State:
    TN
  • Zip Code:
    37218

Amenities

  • Utilities:
    Water Available

Exterior

  • Lot Description:
    Corner Lot, Level, Views

School Information

  • Elementary:
    Cumberland Elementary
  • Middle:
    Haynes Middle
  • High:
    Whites Creek High

Additional Information

  • Date Listed:
    March 5th, 2026
  • Days on Market:
    15
  • Zoning:
    CL

Listing Details

  • Listing Office:
    Adaro Realty

The data relating to real estate for sale on this web site comes in part from the Internet Data Exchange Program of RealTracs Solutions. Real estate listings held by brokerage firms other than Botsko Properties Inc. are marked with the Internet Data Exchange Program logo or thumbnail logo and detailed information about them includes the name of the listing brokers.

Disclaimer: All information is believed to be accurate but not guaranteed and should be independently verified. All properties are subject to prior sale, change or withdrawal.

Copyright 2026 RealTracs Solutions.

Listing information last updated on March 21st, 2026 at 1:24pm CDT.