My Search Tools:

$1,199,000 - 9032 S Harpeth Ct, Nashville

4
Bedrooms
4
Baths
3,400
SQ. Feet
5
Acres

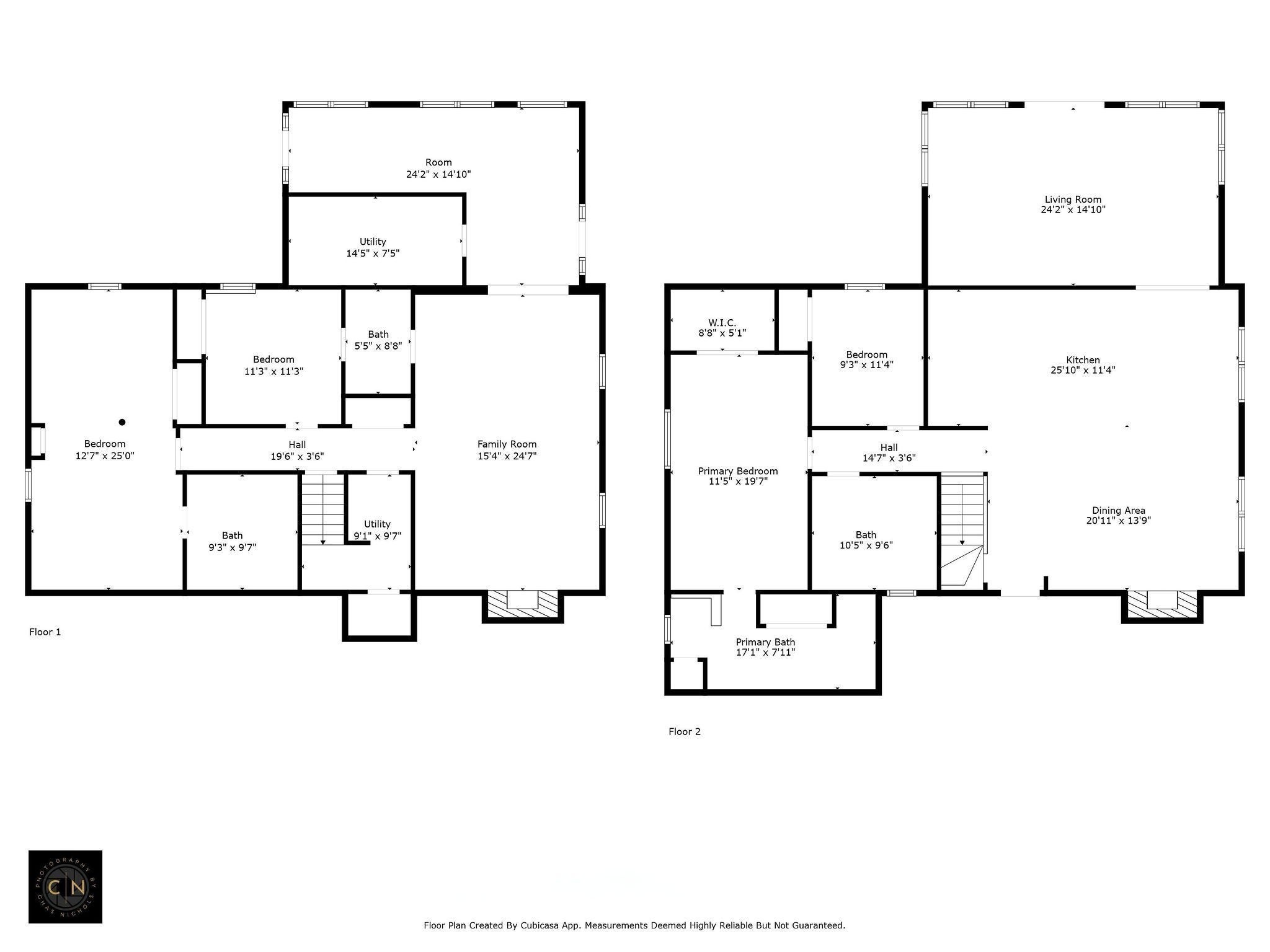
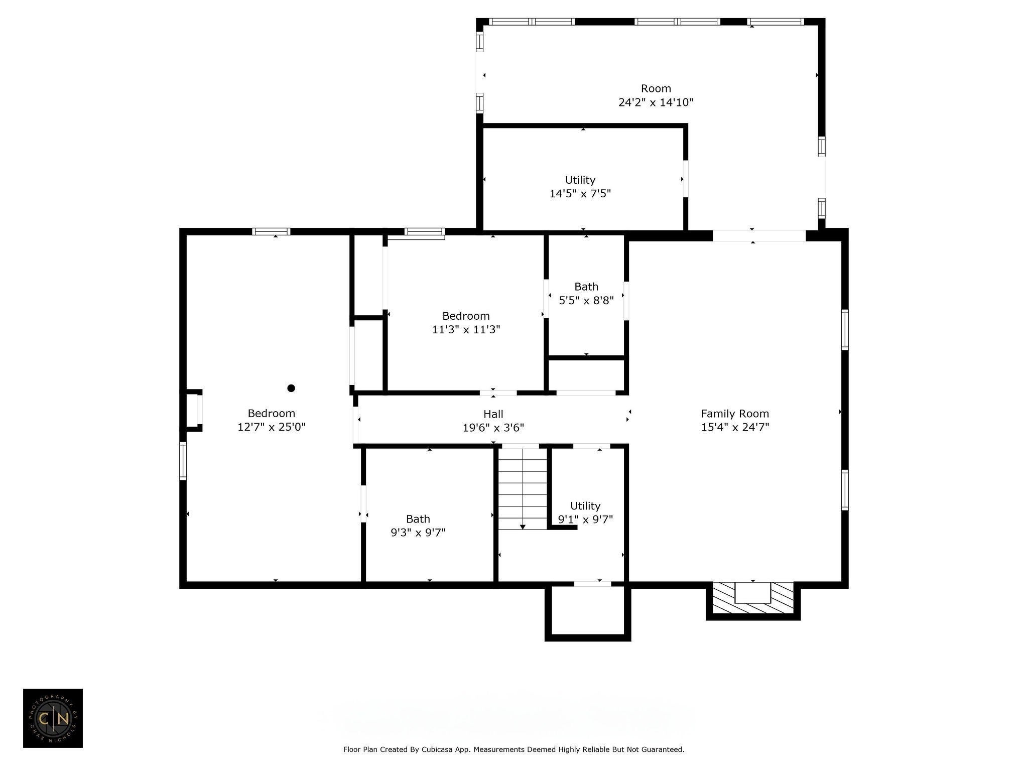
Welcome to 9032 S. Harpeth Ct, a private, gated retreat on 5 level acres offering the perfect blend of Southern charm, functionality, and natural beauty. This exceptional property is ideal for multi-generational living, hobby farming, or anyone seeking space, serenity, and modern conveniences. The primary residence has been tastefully updated and features an open floor plan, a newly remodeled kitchen, a new front door, two primary suites, two wood-stove fireplaces, and a beautifully renovated kitchen. Two decks are perfect for entertaining or quiet mornings in nature. A finished basement with private entry offers potential for an in-law suite or rental apartment. Outdoors, you’ll find a vaulted covered parking area with an electric vehicle charger, plus RV/tour bus hookups for added flexibility. A detached garage/workshop features a full bath and a finished upstairs apartment with a kitchenette, making it ideal as a guest house or studio. Car enthusiasts and hobbyists will appreciate the two additional garages, featuring an open bay between them, which offers ample room for storage, tools, or toys. For animal lovers, this mini-farm is move-in ready with a 2-stall barn equipped with automatic water troughs and multiple fans, two fenced back pastures, an enclosed chicken coop, and a separate dove coop. Lush landscaping surrounds the property, with views leading toward the Harpeth River, located just 50 feet from the property line. Additional highlights: New HVAC (2023), Power generator and hook-up for the house! Gated driveway and private setting, Endless multi-use potential. This is more than a home; it’s a versatile lifestyle property tucked into the heart of Tennessee’s most scenic countryside.

Essential Information

  • MLS® #:
    3134282
  • Price:
    $1,199,000
  • Bedrooms:
    4
  • Bathrooms:
    4.00
  • Full Baths:
    4
  • Square Footage:
    3,400
  • Acres:
    5.00
  • Year Built:
    1973
  • Type:
    Residential
  • Sub-Type:
    Single Family Residence
  • Status:
    Under Contract - Not Showing

Community Information

  • Address:
    9032 S Harpeth Ct
  • Subdivision:
    NA
  • City:
    Nashville
  • County:
    Davidson County, TN
  • State:
    TN
  • Zip Code:
    37221

Amenities

  • Utilities:
    Electricity Available, Water Available
  • Parking Spaces:
    4
  • # of Garages:
    3
  • Garages:
    Garage Door Opener, Detached, Asphalt, Driveway, Gravel

Interior

  • Interior Features:
    Bookcases, Built-in Features, Ceiling Fan(s), Extra Closets, High Ceilings, In-Law Floorplan, Open Floorplan, Walk-In Closet(s), High Speed Internet, Kitchen Island
  • Appliances:
    Built-In Electric Oven, Cooktop, Electric Range, Dishwasher, Microwave, Refrigerator
  • Heating:
    Central, Electric
  • Cooling:
    Central Air
  • Fireplace:
    Yes
  • # of Fireplaces:
    2
  • # of Stories:
    1

Exterior

  • Construction:
    Wood Siding

School Information

  • Elementary:
    Harpeth Valley Elementary
  • Middle:
    Bellevue Middle
  • High:
    James Lawson High School

Additional Information

  • Date Listed:
    February 23rd, 2026
  • Days on Market:
    25

Listing Details

  • Listing Office:
    United Country Real Estate Leipers Fork

The data relating to real estate for sale on this web site comes in part from the Internet Data Exchange Program of RealTracs Solutions. Real estate listings held by brokerage firms other than Botsko Properties Inc. are marked with the Internet Data Exchange Program logo or thumbnail logo and detailed information about them includes the name of the listing brokers.

Disclaimer: All information is believed to be accurate but not guaranteed and should be independently verified. All properties are subject to prior sale, change or withdrawal.

Copyright 2026 RealTracs Solutions.

Listing information last updated on March 20th, 2026 at 10:39am CDT.