My Search Tools:

$759,900 - 4019 Moss Rose Dr, Nashville

3
Bedrooms
3
Baths
2,629
SQ. Feet
0.46
Acres

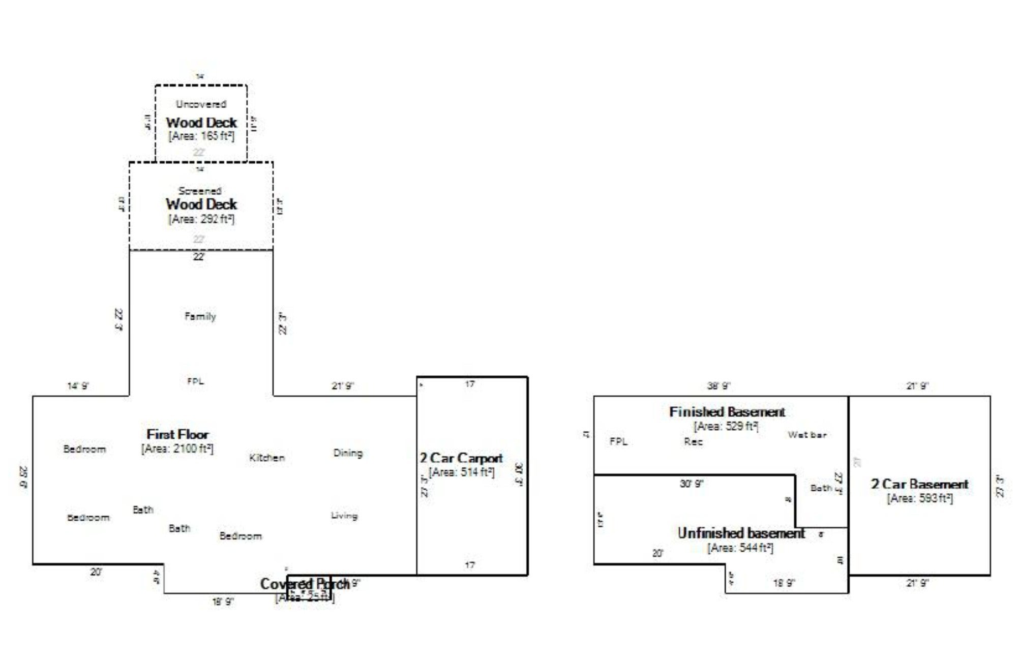
Situated on a quiet street paralleling the Cumberland River that ends at the Cooper Creek Trailhead of Shelby Bottoms, this updated all-brick ranch offers access to greenway jogging and biking while remaining just minutes from the city. Zoned for Dan Mills Elementary (4-minute drive), this home sits on a nearly half-acre level lot with a privacy fence, perfect for baseball and backyard barbecues. Enjoy bug-free relaxation on the 12x21 screened-in deck. Inside, you will find beautiful, finished wood floors and a flexible layout designed for living and entertaining. The main level features a formal living room and a 440 sqft den with built-in bookcases and a gas fireplace, providing multiple spaces for entertainment or working from home. The kitchen has stainless steel appliances and a pantry, opening to the dining and den areas. The partially finished walk-out basement adds value and flexibility. It includes a 34x11 rec room with wet bar, full bathroom, extra storage, second fireplace, and included projector and screen, making it ideal for a game room, home theater, or a private guest suite/4th bedroom. The home also features a 25x20 two-car basement garage with a carport and long driveway for ample parking. The location offers the perfect balance of seclusion and convenience: walkable to a boat ramp and just 1.3 miles (~30 min walk) to the restaurants and shops at Riverside Village (Dose, Bite A Bit Thai & Sushi, Village Pub, Mitchell Delicatessen, Sho Pizza, Ladybird Taco, and Curry Boys BBQ). Kroger (1.9 miles), Publix (3.2 miles), and Home Depot (2.2 miles) are quick trips when you need something for the house, and Opry Mills Mall is only 12 minutes away. You are less than 20 minutes by Uber to downtown Nashville nightlife and Predators or Titans games, 16 minutes to BNA, and 11 minutes to Five Points. Enjoy a fun community atmosphere and great trick-or-treating. Be sure to check out the included property video.

Essential Information

  • MLS® #:
    3132071
  • Price:
    $759,900
  • Bedrooms:
    3
  • Bathrooms:
    3.00
  • Full Baths:
    3
  • Square Footage:
    2,629
  • Acres:
    0.46
  • Year Built:
    1955
  • Type:
    Residential
  • Sub-Type:
    Single Family Residence
  • Style:
    Ranch
  • Status:
    Under Contract - Not Showing

Community Information

  • Address:
    4019 Moss Rose Dr
  • Subdivision:
    Moss Rose Heights
  • City:
    Nashville
  • County:
    Davidson County, TN
  • State:
    TN
  • Zip Code:
    37216

Amenities

  • Utilities:
    Electricity Available, Natural Gas Available, Water Available
  • Parking Spaces:
    4
  • # of Garages:
    2
  • Garages:
    Basement, Attached, Asphalt

Interior

  • Interior Features:
    Built-in Features, Ceiling Fan(s), Extra Closets, Pantry, Wet Bar
  • Appliances:
    Built-In Electric Oven, Cooktop, Dishwasher, Disposal, Refrigerator, Stainless Steel Appliance(s)
  • Heating:
    Central, Heat Pump, Natural Gas
  • Cooling:
    Central Air, Electric
  • Fireplace:
    Yes
  • # of Fireplaces:
    2
  • # of Stories:
    1

Exterior

  • Lot Description:
    Level
  • Roof:
    Asphalt
  • Construction:
    Brick

School Information

  • Elementary:
    Dan Mills Elementary
  • Middle:
    Isaac Litton Middle
  • High:
    Stratford STEM Magnet School Upper Campus

Additional Information

  • Date Listed:
    February 18th, 2026
  • Days on Market:
    38

Listing Details

  • Listing Office:
    Re/max Exceptional Properties

The data relating to real estate for sale on this web site comes in part from the Internet Data Exchange Program of RealTracs Solutions. Real estate listings held by brokerage firms other than Botsko Properties Inc. are marked with the Internet Data Exchange Program logo or thumbnail logo and detailed information about them includes the name of the listing brokers.

Disclaimer: All information is believed to be accurate but not guaranteed and should be independently verified. All properties are subject to prior sale, change or withdrawal.

Copyright 2026 RealTracs Solutions.

Listing information last updated on March 31st, 2026 at 4:40pm CDT.