My Search Tools:

$195,000 - 1483 Catlettsburg Rd, Sevierville

-
Bedrooms
-
Baths
N/A
SQ. Feet
1
Acres

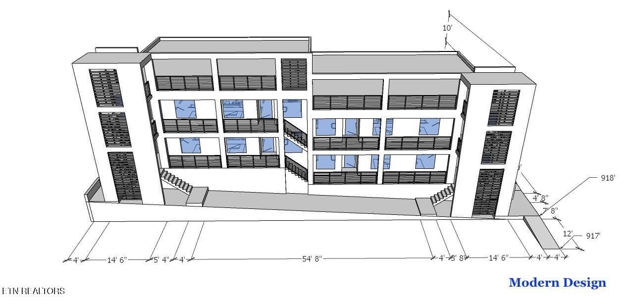
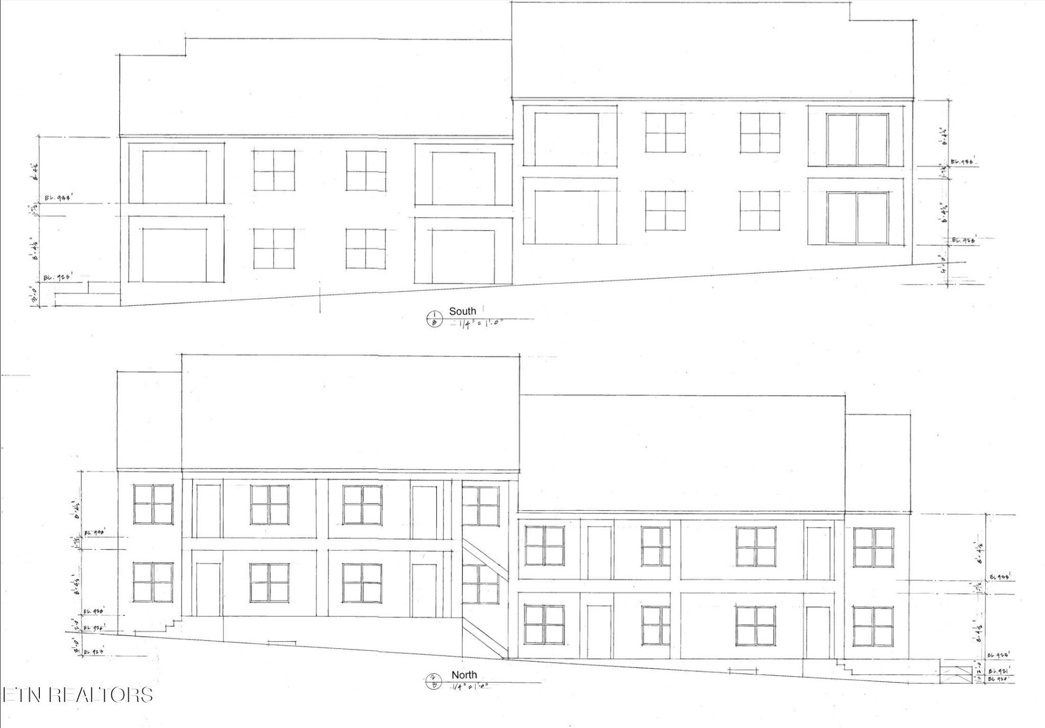
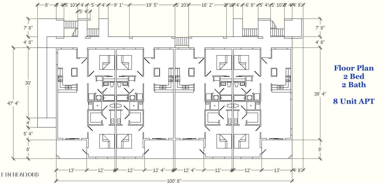
Prime Commercial Development Opportunity in Sevierville, TN Presenting an exceptional investment opportunity at 1483 Catlettsburg Rd, Sevierville, TN 37876—a strategically located 1-acre parcel zoned C-3. This property comes with a professionally designed site plan for an 8-unit apartment complex, crafted by a reputable architect, and is ready for city approval. Capitalize on the lucrative rental market, whether targeting short-term vacationers or long-term residents. Property Highlights: - 1-acre lot - Survey completed, boundaries clearly defined - Utilities in place - Electricity, water, and gas available (City sewer extension option) - Ready-to-go development - Site plans available for immediate city approval Unbeatable Location: With an average of 11 million visitors annually to the area. The property is conveniently located near major retailers, shopping centers, and attractions, ensuring high visibility and accessibility. Nearby Shopping & Retail: - Walmart Supercenter - Belk Department Store - T.J.Maxx - Boot Factory Outlet - Buc-ee's: Just a short drive to Buc-ee's Sevierville, one of the area's biggest attractions! Close to Major Attractions: - Dollywood Theme Park - Great Smoky Mountains National Park - Ripley's Aquarium of the Smokies - Tanger Outlets Sevierville Located right off of Hwy 66 and just minutes from major highways, this property offers easy access to I-40, the Parkway (US-441), ensuring seamless connectivity to Sevierville, Pigeon Forge, Gatlinburg, and Knoxville. Investment Potential: This property represents a once-in-a-lifetime opportunity to develop a multi-unit residential complex in a high-demand area. With site plans ready and utilities in place, investors can swiftly move into the construction phase, positioning themselves to reap substantial returns from both the thriving short-term vacation rental market and the stable long-term rental sector.

Essential Information

  • MLS® #:
    3124624
  • Price:
    $195,000
  • Bathrooms:
    0.00
  • Acres:
    1.00
  • Type:
    Farm
  • Status:
    Active

Community Information

  • Address:
    1483 Catlettsburg Rd
  • City:
    Sevierville
  • County:
    Sevier County, TN
  • State:
    TN
  • Zip Code:
    37876

Amenities

  • View:
    Mountain(s)

Exterior

  • Lot Description:
    Rolling Slope, Level, Cleared

Additional Information

  • Date Listed:
    February 24th, 2026
  • Days on Market:
    338

Listing Details

  • Listing Office:
    Exit Realty Pros Tn

The data relating to real estate for sale on this web site comes in part from the Internet Data Exchange Program of RealTracs Solutions. Real estate listings held by brokerage firms other than Botsko Properties Inc. are marked with the Internet Data Exchange Program logo or thumbnail logo and detailed information about them includes the name of the listing brokers.

Disclaimer: All information is believed to be accurate but not guaranteed and should be independently verified. All properties are subject to prior sale, change or withdrawal.

Copyright 2026 RealTracs Solutions.

Listing information last updated on February 27th, 2026 at 12:24am CST.