My Search Tools:

$1,199,900 - 3101 Winterberry Dr, Nolensville

3
Bedrooms
Baths
3,038
SQ. Feet
2026
Year Built

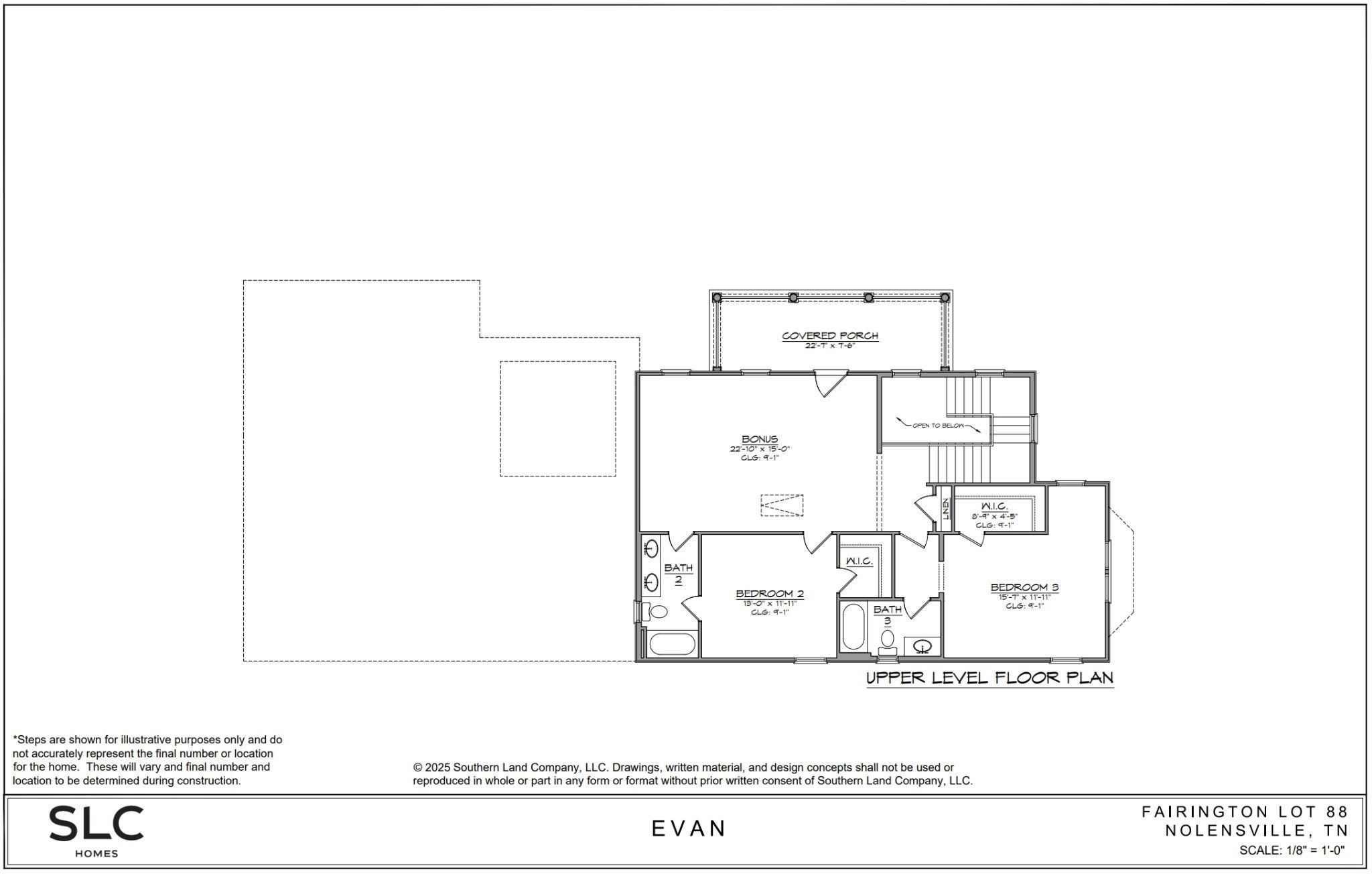
Wonder is here! From the visionaries of Westhaven, Southern Land Company's newest community, Fairington, is a new master planned community offering luxury homes, exceptional future amenities, walkable shops and dining, and so much more. This 3 bedroom, 3.5 bathroom home will feature hardwoods throughout the main floor, large screened in covered porch area, car garage, and high end finishes INCLUDED throughout the home. This is a presale opportunity to purchase and personalize the interior selections for this home. CORNER LOT with 2-STORY PORCHES! Please visit us on site at our Wonder Gallery Airstream!

Essential Information

  • MLS® #:
    3124418
  • Price:
    $1,199,900
  • Bedrooms:
    3
  • Bathrooms:
    3.50
  • Full Baths:
    3
  • Half Baths:
    1
  • Square Footage:
    3,038
  • Acres:
    0.00
  • Year Built:
    2026
  • Type:
    Residential
  • Sub-Type:
    Single Family Residence
  • Status:
    Under Contract - Not Showing

Community Information

  • Address:
    3101 Winterberry Dr
  • Subdivision:
    Fairington
  • City:
    Nolensville
  • County:
    Williamson County, TN
  • State:
    TN
  • Zip Code:
    37135

Amenities

  • Amenities:
    Clubhouse, Dog Park, Fitness Center, Park, Playground, Pool, Sidewalks, Tennis Court(s), Underground Utilities, Trail(s)
  • Utilities:
    Water Available, Cable Connected
  • Parking Spaces:
    2
  • # of Garages:
    2
  • Garages:
    Garage Door Opener, Garage Faces Rear

Interior

  • Interior Features:
    Built-in Features, Entrance Foyer, Extra Closets, Open Floorplan, Pantry, Walk-In Closet(s), High Speed Internet, Kitchen Island
  • Appliances:
    Built-In Electric Oven, Cooktop, Dishwasher, Disposal, Microwave
  • Heating:
    Central
  • Cooling:
    Central Air
  • Fireplace:
    Yes
  • # of Fireplaces:
    1
  • # of Stories:
    2

Exterior

  • Roof:
    Shingle
  • Construction:
    Fiber Cement, Brick

School Information

  • Elementary:
    Nolensville Elementary
  • Middle:
    Mill Creek Middle School
  • High:
    Nolensville High School

Additional Information

  • Date Listed:
    February 9th, 2026
  • Days on Market:
    38

Listing Details

  • Listing Office:
    Fairington Realty

The data relating to real estate for sale on this web site comes in part from the Internet Data Exchange Program of RealTracs Solutions. Real estate listings held by brokerage firms other than Botsko Properties Inc. are marked with the Internet Data Exchange Program logo or thumbnail logo and detailed information about them includes the name of the listing brokers.

Disclaimer: All information is believed to be accurate but not guaranteed and should be independently verified. All properties are subject to prior sale, change or withdrawal.

Copyright 2026 RealTracs Solutions.

Listing information last updated on March 20th, 2026 at 10:39am CDT.