My Search Tools:

$325,000 - 1 Eldridge Lane Sw, Cleveland

-
Bedrooms
-
Baths
N/A
SQ. Feet
6.99
Acres

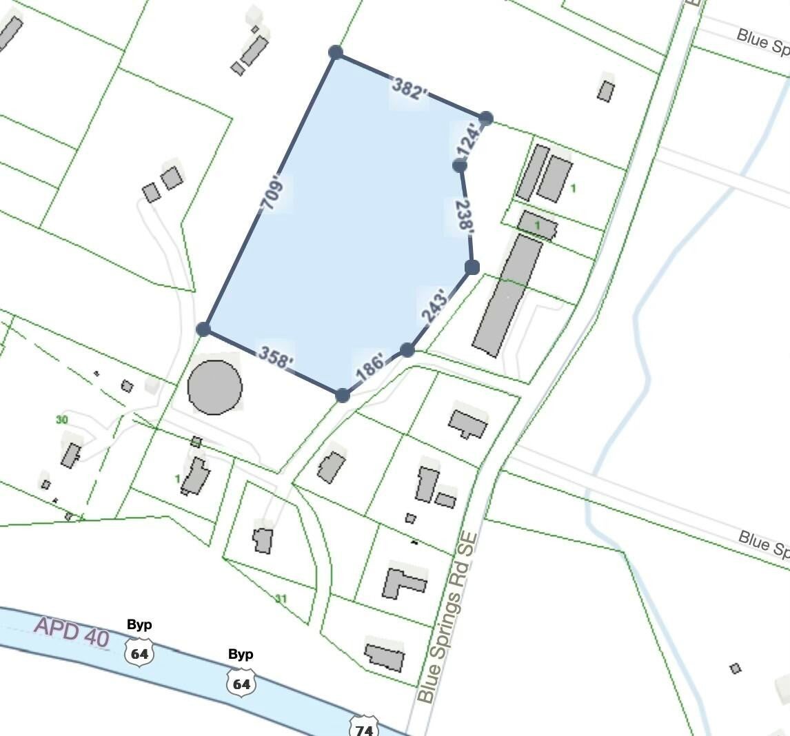
This 6.99-acre property presents a fantastic opportunity for both single-family homes or multi-family development. Its zoning as R2 Low Density Residential allows for flexibility, with the potential for up to four-unit structures. Convenient proximity to APD-40, providing quick access to I-75 and Downtown Cleveland—ideal for residents who need to commute or want to be near city amenities. With 6.99 acres of land, you have ample space to create a development project that could range from single-family homes to multi-family townhomes or duplexes, depending on your vision. The lot's size and location make it a strong candidate for a variety of residential uses.

Essential Information

  • MLS® #:
    3119395
  • Price:
    $325,000
  • Bathrooms:
    0.00
  • Acres:
    6.99
  • Type:
    Land
  • Status:
    Active

Community Information

  • Address:
    1 Eldridge Lane Sw
  • City:
    Cleveland
  • County:
    Bradley County, TN
  • State:
    TN
  • Zip Code:
    37311

Exterior

  • Lot Description:
    Sloped, Wooded

School Information

  • Elementary:
    Blythe-Bower Elementary
  • Middle:
    Cleveland Middle
  • High:
    Cleveland High

Additional Information

  • Date Listed:
    February 2nd, 2026
  • Days on Market:
    40

Listing Details

  • Listing Office:
    United Real Estate Experts

The data relating to real estate for sale on this web site comes in part from the Internet Data Exchange Program of RealTracs Solutions. Real estate listings held by brokerage firms other than Botsko Properties Inc. are marked with the Internet Data Exchange Program logo or thumbnail logo and detailed information about them includes the name of the listing brokers.

Disclaimer: All information is believed to be accurate but not guaranteed and should be independently verified. All properties are subject to prior sale, change or withdrawal.

Copyright 2026 RealTracs Solutions.

Listing information last updated on March 15th, 2026 at 3:54am CDT.