My Search Tools:

$315,000 - 3417 Hartford Drive, Chattanooga

3
Bedrooms
Baths
1,184
SQ. Feet
0.3
Acres

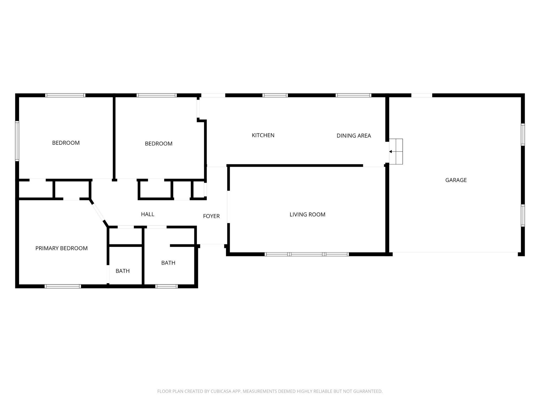
*Timeless Red Bank Rancher with Major Updates in a Prime Location* From the moment you pull in, this home feels like a place with real potential and peace of mind where it matters most. Welcome to 3417 Hartford Drive, a Red Bank rancher where the major systems have already been taken care of, giving you a strong foundation and the freedom to make the space your own over time. The roof is less than 3 years old, the HVAC system was installed in 2022, and the breaker and electrical panels were updated within the last 7 years. The home also features new windows, a brand-new garage door, and a fresh coat of paint. While the interior reflects a more classic style, all of the major improvements have already been taken care of, giving you the freedom to personalize cosmetic updates at your own pace. Step outside and enjoy evenings on the back porch watching the sun set with Signal Mountain in the background — a simple, everyday view that makes this location special. Situated in the heart of Red Bank, this home is within walking distance to Kids Corner playground and the pickleball and tennis courts. You are less than five minutes from shopping, dining, and daily essentials, and only ten minutes from downtown Chattanooga. Homes with solid bones, major system updates, and this location are increasingly hard to find. Do not miss the opportunity to put your own touch on a home in one of Red Bank's most desirable and growing communities.

Essential Information

  • MLS® #:
    3116216
  • Price:
    $315,000
  • Bedrooms:
    3
  • Bathrooms:
    1.50
  • Full Baths:
    1
  • Half Baths:
    1
  • Square Footage:
    1,184
  • Acres:
    0.30
  • Year Built:
    1957
  • Type:
    Residential
  • Sub-Type:
    Single Family Residence
  • Status:
    Active

Community Information

  • Address:
    3417 Hartford Drive
  • Subdivision:
    Mary Hartley
  • City:
    Chattanooga
  • County:
    Hamilton County, TN
  • State:
    TN
  • Zip Code:
    37415

Amenities

  • Utilities:
    Electricity Available, Water Available
  • Parking Spaces:
    2
  • # of Garages:
    2
  • Garages:
    Attached, Driveway
  • View:
    Valley, Mountain(s)

Interior

  • Cooling:
    Central Air, Electric

Exterior

  • Exterior Features:
    Balcony
  • Construction:
    Stone, Wood Siding, Other

School Information

  • Elementary:
    Red Bank Elementary School
  • Middle:
    Red Bank Middle School
  • High:
    Red Bank High School

Additional Information

  • Date Listed:
    January 27th, 2026
  • Days on Market:
    44

Listing Details

  • Listing Office:
    Re/max Renaissance

The data relating to real estate for sale on this web site comes in part from the Internet Data Exchange Program of RealTracs Solutions. Real estate listings held by brokerage firms other than Botsko Properties Inc. are marked with the Internet Data Exchange Program logo or thumbnail logo and detailed information about them includes the name of the listing brokers.

Disclaimer: All information is believed to be accurate but not guaranteed and should be independently verified. All properties are subject to prior sale, change or withdrawal.

Copyright 2026 RealTracs Solutions.

Listing information last updated on March 13th, 2026 at 10:25am CDT.