My Search Tools:

$544,900 - 1104 Golf Course Ln, Ashland City

3
Bedrooms
Baths
3,514
SQ. Feet
0.78
Acres

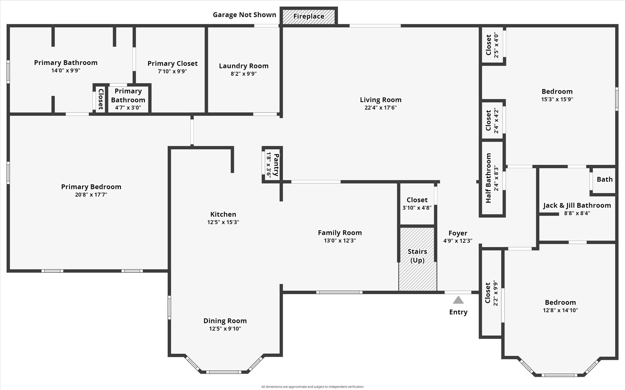
BACK ON MARKET through no fault of the sellers. Previous buyers couldn't get their home sale contingency satisfied. Impressive home with a ton of features! Plenty of space! Just north of Ashland City amenities. Brand New two HVAC systems, 2023 and 2024. New electrical panel 6 months ago! New Stainless Fridge and Dishwasher. New roof just installed a few months ago. New Fence. New Shed! Granite counters, Gas cooktop! Large garage and bonus room! Covered and screen in back porch. Incredible updated master bath to die for! Large closets throughout. Upstairs has possible 4th bedroom and office being used as a 5th bedroom. Layout includes a jack n Jill bath downstairs essentially giving each bedroom it's own full bath! One to see in person for sure! Great landscaping. It's impressive!

Essential Information

  • MLS® #:
    3097412
  • Price:
    $544,900
  • Bedrooms:
    3
  • Bathrooms:
    3.50
  • Full Baths:
    3
  • Half Baths:
    1
  • Square Footage:
    3,514
  • Acres:
    0.78
  • Year Built:
    1989
  • Type:
    Residential
  • Sub-Type:
    Single Family Residence
  • Style:
    Traditional
  • Status:
    Active

Community Information

  • Address:
    1104 Golf Course Ln
  • Subdivision:
    Belle Chase
  • City:
    Ashland City
  • County:
    Cheatham County, TN
  • State:
    TN
  • Zip Code:
    37015

Amenities

  • Utilities:
    Electricity Available, Natural Gas Available, Water Available
  • Parking Spaces:
    2
  • # of Garages:
    2
  • Garages:
    Garage Faces Rear, Concrete, Driveway

Interior

  • Interior Features:
    Ceiling Fan(s), Central Vacuum, Extra Closets, High Ceilings, Pantry, High Speed Internet
  • Appliances:
    Dishwasher, Microwave, Refrigerator, Built-In Electric Oven, Cooktop
  • Heating:
    Central, Natural Gas
  • Cooling:
    Central Air, Electric
  • Fireplace:
    Yes
  • # of Fireplaces:
    1
  • # of Stories:
    2

Exterior

  • Lot Description:
    Level
  • Roof:
    Shingle
  • Construction:
    Brick, Wood Siding

School Information

  • Elementary:
    Ashland City Elementary
  • Middle:
    Cheatham Middle School
  • High:
    Cheatham Co Central

Additional Information

  • Date Listed:
    January 15th, 2026
  • Days on Market:
    9

Listing Details

  • Listing Office:
    Blackwell Realty

The data relating to real estate for sale on this web site comes in part from the Internet Data Exchange Program of RealTracs Solutions. Real estate listings held by brokerage firms other than Botsko Properties Inc. are marked with the Internet Data Exchange Program logo or thumbnail logo and detailed information about them includes the name of the listing brokers.

Disclaimer: All information is believed to be accurate but not guaranteed and should be independently verified. All properties are subject to prior sale, change or withdrawal.

Copyright 2026 RealTracs Solutions.

Listing information last updated on January 24th, 2026 at 6:09pm CST.