My Search Tools:

$1,175,000 - 3136 Bradfield Dr, Nolensville

6
Bedrooms
Baths
3,927
SQ. Feet
0.3
Acres

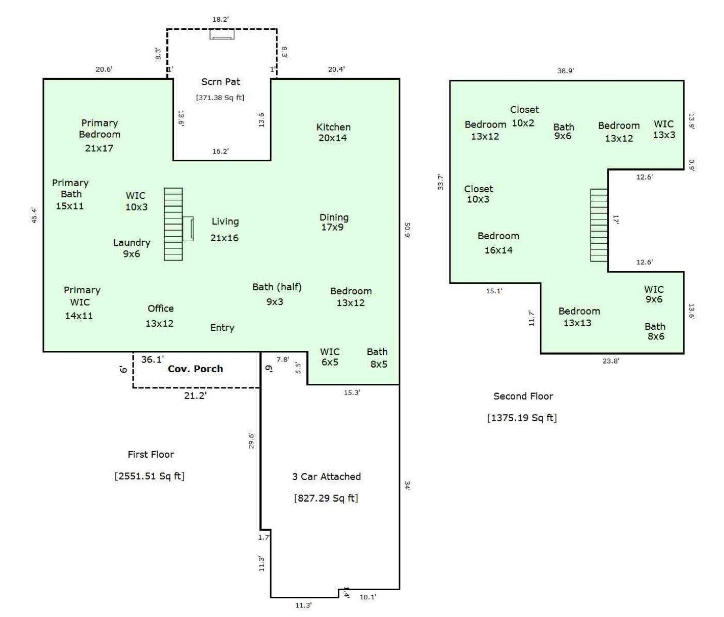
Love Nolensville? This is the move. In Summerlyn, this coveted "Rainsford" house plan by Jones Company pairs walk-to-school convenience with room to live large. Mill Creek Elementary, Mill Creek Middle, and Nolensville High are an easy stroll—Friday Night Lights, homecoming parades, and community events are basically on your calendar. Inside, everyday living flows on the main level: a true primary suite plus a second bedroom, a private study with French doors, and a vaulted Great Room anchored by a stacked-stone gas fireplace and built-in bookshelf. The bright, airy kitchen is made for gathering—huge island, farmhouse sink, granite counters, and double ovens—so breakfast, homework, and dinner parties all have a home. Love mornings and sunsets? The east-facing covered front porch is perfect for coffee, while the west-facing screened back porch—with its own gas fireplace—invites golden-hour unwinds. Steps lead down to a flat, fenced backyard ready for play, pets, and weekend grilling. A three-car garage solves parking and storage in one swoop. Upstairs adds flexibility: a 16x14 room that can live as a sixth bedroom, hobby space, or bonus room, plus three additional bedrooms to keep everyone comfortably tucked away. Beyond the home, momentum is building all around: Nolensville Town Square is underway; a new Publix-anchored center is opening soon; and a Kroger-anchored mixed-use development is on the horizon. Summerlyn sits at the center of it all—social, friendly, and close to everything that makes Nolensville shine. Tour today and make school-day strolls and stadium-night cheers part of your every week.

Essential Information

  • MLS® #:
    3093207
  • Price:
    $1,175,000
  • Bedrooms:
    6
  • Bathrooms:
    4.50
  • Full Baths:
    4
  • Half Baths:
    1
  • Square Footage:
    3,927
  • Acres:
    0.30
  • Year Built:
    2017
  • Type:
    Residential
  • Sub-Type:
    Single Family Residence
  • Style:
    Traditional
  • Status:
    Under Contract - Showing

Community Information

  • Address:
    3136 Bradfield Dr
  • Subdivision:
    Summerlyn Sec2
  • City:
    Nolensville
  • County:
    Williamson County, TN
  • State:
    TN
  • Zip Code:
    37135

Amenities

  • Amenities:
    Park, Playground, Pool, Sidewalks, Underground Utilities, Trail(s)
  • Utilities:
    Electricity Available, Natural Gas Available, Water Available, Cable Connected
  • Parking Spaces:
    3
  • # of Garages:
    3
  • Garages:
    Garage Door Opener, Garage Faces Side

Interior

  • Interior Features:
    Air Filter, Bookcases, Built-in Features, Ceiling Fan(s), Entrance Foyer, Extra Closets, High Ceilings, Open Floorplan, Pantry, Walk-In Closet(s), High Speed Internet
  • Appliances:
    Built-In Electric Oven, Double Oven, Built-In Electric Range, Dishwasher, Microwave, Refrigerator
  • Heating:
    Central, Natural Gas
  • Cooling:
    Central Air, Electric
  • Fireplace:
    Yes
  • # of Fireplaces:
    2
  • # of Stories:
    2

Exterior

  • Lot Description:
    Level
  • Roof:
    Shingle
  • Construction:
    Brick

School Information

  • Elementary:
    Mill Creek Elementary School
  • Middle:
    Mill Creek Middle School
  • High:
    Nolensville High School

Additional Information

  • Date Listed:
    January 14th, 2026
  • Days on Market:
    63

Listing Details

  • Listing Office:
    Beacon Real Estate

The data relating to real estate for sale on this web site comes in part from the Internet Data Exchange Program of RealTracs Solutions. Real estate listings held by brokerage firms other than Botsko Properties Inc. are marked with the Internet Data Exchange Program logo or thumbnail logo and detailed information about them includes the name of the listing brokers.

Disclaimer: All information is believed to be accurate but not guaranteed and should be independently verified. All properties are subject to prior sale, change or withdrawal.

Copyright 2026 RealTracs Solutions.

Listing information last updated on March 20th, 2026 at 6:39pm CDT.