My Search Tools:

$414,999 - 600 Sun Bear Ln, Mount Pleasant

3
Bedrooms
Baths
2,343
SQ. Feet
2026
Year Built

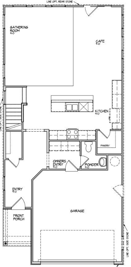
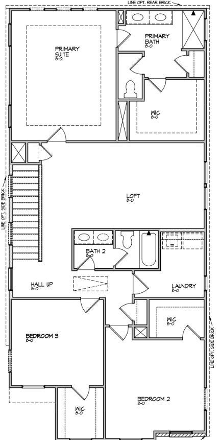
The Juniper Floor Plan is a thoughtfully designed two-story home that offers a smart balance of functionality, comfort, and modern style. With three bedrooms and two and a half bathrooms, this home is ideal for families or homeowners who value well-defined living spaces paired with open, inviting areas for gathering and entertaining. All bedrooms are conveniently located on the upper level, creating a private retreat separate from the main living areas. The primary suite is spacious and welcoming, featuring a large walk-in closet and a well-appointed en-suite bathroom designed for relaxation and everyday comfort. Two additional bedrooms provide flexibility for family members, guests, or a home office, while a versatile loft area adds valuable extra living space—perfect for a media room, play area, homework station, or second family lounge. A convenient upstairs laundry room enhances daily efficiency by keeping chores close to the bedrooms. The main level is designed for both comfort and practicality. A welcoming owner’s entry creates an organized transition space, complete with a storage closet for coats, shoes, and everyday essentials. The heart of the home is the large, open kitchen, offering generous counter space, abundant cabinetry, and a layout that flows seamlessly into the expansive gathering room and café area. This open-concept design creates a warm, connected environment ideal for entertaining guests, hosting family meals, or enjoying relaxed evenings at home. Thoughtful storage solutions throughout the home support organization and ease of living, while the separation of living and sleeping spaces enhances privacy. With its flexible layout, modern design, and family-friendly flow, the Juniper Floor Plan delivers everyday comfort and long-term livability in a home that adapts to your lifestyle. Now is the time to act—get in before the Grand Opening. Pre-Grand Opening incentives are at $40,000 with preferred lender.

Essential Information

  • MLS® #:
    3079604
  • Price:
    $414,999
  • Bedrooms:
    3
  • Bathrooms:
    2.50
  • Full Baths:
    2
  • Half Baths:
    1
  • Square Footage:
    2,343
  • Acres:
    0.00
  • Year Built:
    2026
  • Type:
    Residential
  • Sub-Type:
    Single Family Residence
  • Status:
    Active

Community Information

  • Address:
    600 Sun Bear Ln
  • Subdivision:
    Cottages of Bearwood
  • City:
    Mount Pleasant
  • County:
    Maury County, TN
  • State:
    TN
  • Zip Code:
    38474

Amenities

  • Utilities:
    Water Available
  • Parking Spaces:
    4
  • # of Garages:
    2
  • Garages:
    Garage Faces Front, Driveway

Interior

  • Interior Features:
    Air Filter, Built-in Features, Ceiling Fan(s), Entrance Foyer, Extra Closets, High Ceilings, Open Floorplan, Pantry, Smart Thermostat, Walk-In Closet(s), High Speed Internet, Kitchen Island
  • Appliances:
    Electric Oven, Electric Range, Dishwasher, Disposal, ENERGY STAR Qualified Appliances, Microwave, Stainless Steel Appliance(s), Smart Appliance(s)
  • Heating:
    Central
  • Cooling:
    Central Air
  • # of Stories:
    2

Exterior

  • Exterior Features:
    Smart Lock(s)
  • Lot Description:
    Level
  • Construction:
    Hardboard Siding, Brick, Stone

School Information

  • Elementary:
    Mt Pleasant Elementary
  • Middle:
    Mount Pleasant Middle School
  • High:
    Mt Pleasant High School

Additional Information

  • Date Listed:
    January 11th, 2026
  • Days on Market:
    3

Listing Details

  • Listing Office:
    Drb Group Tennessee

The data relating to real estate for sale on this web site comes in part from the Internet Data Exchange Program of RealTracs Solutions. Real estate listings held by brokerage firms other than Botsko Properties Inc. are marked with the Internet Data Exchange Program logo or thumbnail logo and detailed information about them includes the name of the listing brokers.

Disclaimer: All information is believed to be accurate but not guaranteed and should be independently verified. All properties are subject to prior sale, change or withdrawal.

Copyright 2026 RealTracs Solutions.

Listing information last updated on January 14th, 2026 at 9:54pm CST.