My Search Tools:

$750,000 - 9334 Short Mountain Rd, Smithville

6
Bedrooms
Baths
6,150
SQ. Feet
2.02
Acres

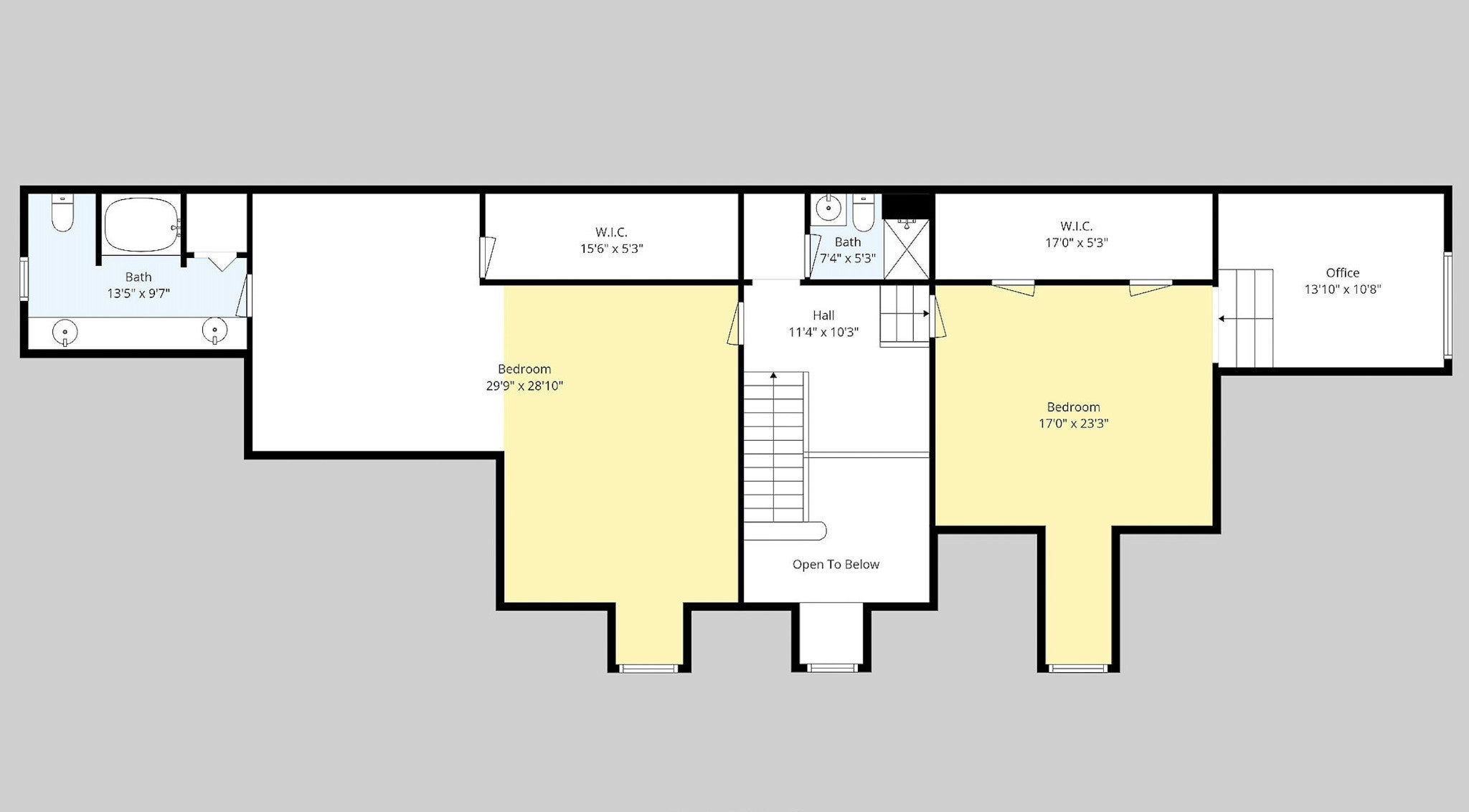
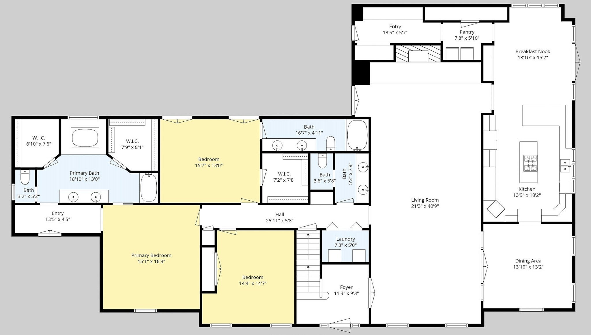
MOTIVATED SELLER! This brick home offers a spacious and functional layout with quality finishes throughout, including real hardwood floors, tile flooring, and beautiful wood cabinetry and trim. A large entryway opens into the main living areas, creating a welcoming first impression and an easy flow throughout the home. The main floor includes three bedrooms, two full bathrooms and one half bathroom. This level features the primary bedroom with an en suite bathroom, additional bedrooms, and a comfortable living area highlighted by real hardwood flooring and a brick fireplace wall. The kitchen offers custom wood cabinetry, tile flooring, ample counter space, and bar seating, providing both everyday functionality and space for entertaining. The upper level includes two bedrooms and two full bathrooms, offering additional private living space that works well for guests, family members, or flexible use. The basement offers both finished and unfinished space. There is a finished apartment in the basement with a partially finished living area, which includes a bedroom, full bathroom, and kitchen. The remaining basement area is unfinished, with framed walls already in place, providing excellent potential for future expansion, storage, or additional living areas. The basement also includes two additional full bathrooms that are partially finished. Overall, the home offers a total of six bedrooms, five full bathrooms, and one half bathroom and two unfinished bathrooms in the basement.. A floor plan is included to outline room layout and overall flow of the home.

Essential Information

  • MLS® #:
    3079264
  • Price:
    $750,000
  • Bedrooms:
    6
  • Bathrooms:
    5.50
  • Full Baths:
    5
  • Half Baths:
    1
  • Square Footage:
    6,150
  • Acres:
    2.02
  • Year Built:
    1991
  • Type:
    Residential
  • Sub-Type:
    Single Family Residence
  • Style:
    Traditional
  • Status:
    Active

Community Information

  • Address:
    9334 Short Mountain Rd
  • Subdivision:
    NONE
  • City:
    Smithville
  • County:
    Cannon County, TN
  • State:
    TN
  • Zip Code:
    37166

Amenities

  • Utilities:
    Electricity Available, Natural Gas Available, Water Available

Interior

  • Appliances:
    Built-In Electric Oven, Electric Range, Trash Compactor, Dishwasher, Disposal, Microwave, Refrigerator
  • Heating:
    Central, Natural Gas
  • Cooling:
    Central Air, Electric
  • Fireplace:
    Yes
  • # of Fireplaces:
    1
  • # of Stories:
    2

Exterior

  • Construction:
    Brick, Frame

School Information

  • Elementary:
    Short Mountain
  • Middle:
    Cannon County Middle School
  • High:
    Cannon County High School

Additional Information

  • Date Listed:
    January 9th, 2026
  • Days on Market:
    80

Listing Details

  • Listing Office:
    Better Homes And Gardens Real Estate Town & Lake

The data relating to real estate for sale on this web site comes in part from the Internet Data Exchange Program of RealTracs Solutions. Real estate listings held by brokerage firms other than Botsko Properties Inc. are marked with the Internet Data Exchange Program logo or thumbnail logo and detailed information about them includes the name of the listing brokers.

Disclaimer: All information is believed to be accurate but not guaranteed and should be independently verified. All properties are subject to prior sale, change or withdrawal.

Copyright 2026 RealTracs Solutions.

Listing information last updated on April 1st, 2026 at 4:39am CDT.