My Search Tools:

$1,850 - 1600 Golf Club Ln, Clarksville

-
Bedrooms
-
Baths
N/A
SQ. Feet
0.3
Acres

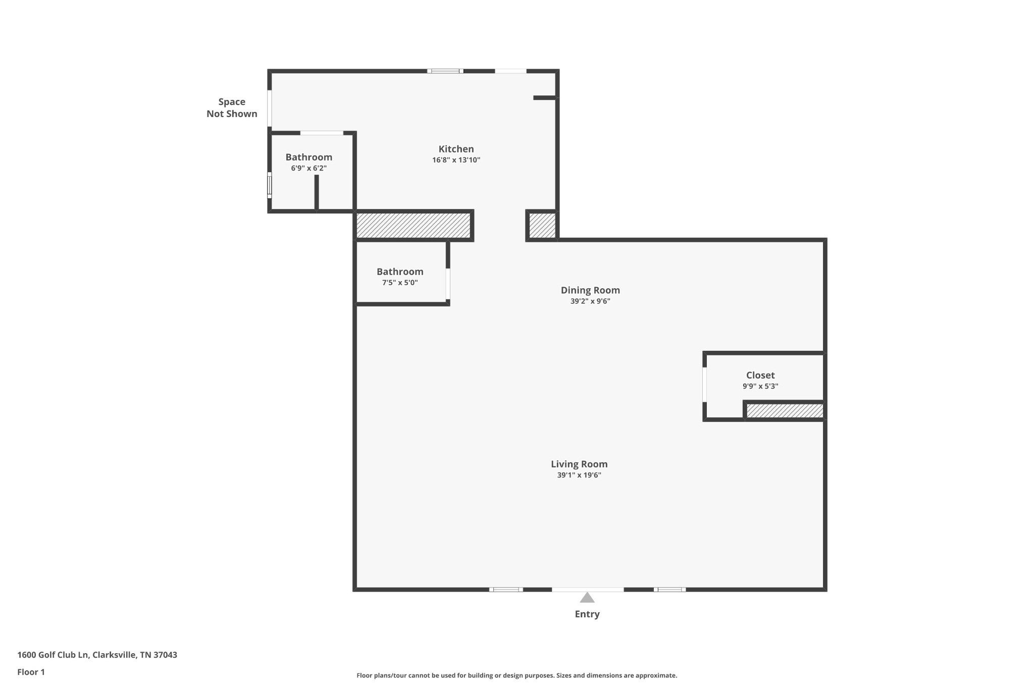
Unlock the potential of your business at 1600 Golf Club Lane — a newly renovated commercial space located in the Clarksville! This versatile unit offers a bright, spacious layout designed to adapt to a wide variety of business needs. Upon entering through the front of the building, you’re greeted by a large open room ideal for a retail showroom, boutique studio, office space, client reception area, or creative workspace — the possibilities are endless. To the right, a generous storage closet provides convenient space for inventory, supplies, or equipment. To the left, you'll find a well-appointed bathroom featuring a toilet and single-sink vanity for guests or customers. Toward the back of the space is a secondary room perfect for an employee kitchen, break area, or private workspace. This area includes a sink, storage cabinetry, and countertop space for added convenience. A rare bonus in commercial rentals, this section also features a full bathroom complete with a shower, toilet, and single-sink vanity, offering additional flexibility for businesses that benefit from onsite facilities. This thoughtfully updated space is move-in ready and positioned in one of Clarksville’s most high-traffic, centrally located commercial corridors. Bring your vision to life at 1600 Golf Club Lane!

Essential Information

  • MLS® #:
    3071225
  • Price:
    $1,850
  • Bathrooms:
    0.00
  • Acres:
    0.30
  • Year Built:
    1969
  • Type:
    Commercial Lease
  • Sub-Type:
    Mixed Use
  • Status:
    Active

Community Information

  • Address:
    1600 Golf Club Ln
  • City:
    Clarksville
  • County:
    Montgomery County, TN
  • State:
    TN
  • Zip Code:
    37043

Exterior

  • Roof:
    Aluminum

Additional Information

  • Date Listed:
    January 2nd, 2026
  • Days on Market:
    11
  • Zoning:
    C2

Listing Details

  • Listing Office:
    Blue Cord Realty, Llc

The data relating to real estate for sale on this web site comes in part from the Internet Data Exchange Program of RealTracs Solutions. Real estate listings held by brokerage firms other than Botsko Properties Inc. are marked with the Internet Data Exchange Program logo or thumbnail logo and detailed information about them includes the name of the listing brokers.

Disclaimer: All information is believed to be accurate but not guaranteed and should be independently verified. All properties are subject to prior sale, change or withdrawal.

Copyright 2026 RealTracs Solutions.

Listing information last updated on January 14th, 2026 at 4:54am CST.