My Search Tools:

$589,900 - 130 Coarsey Blvd, Hendersonville

4
Bedrooms
Baths
3,340
SQ. Feet
0.22
Acres

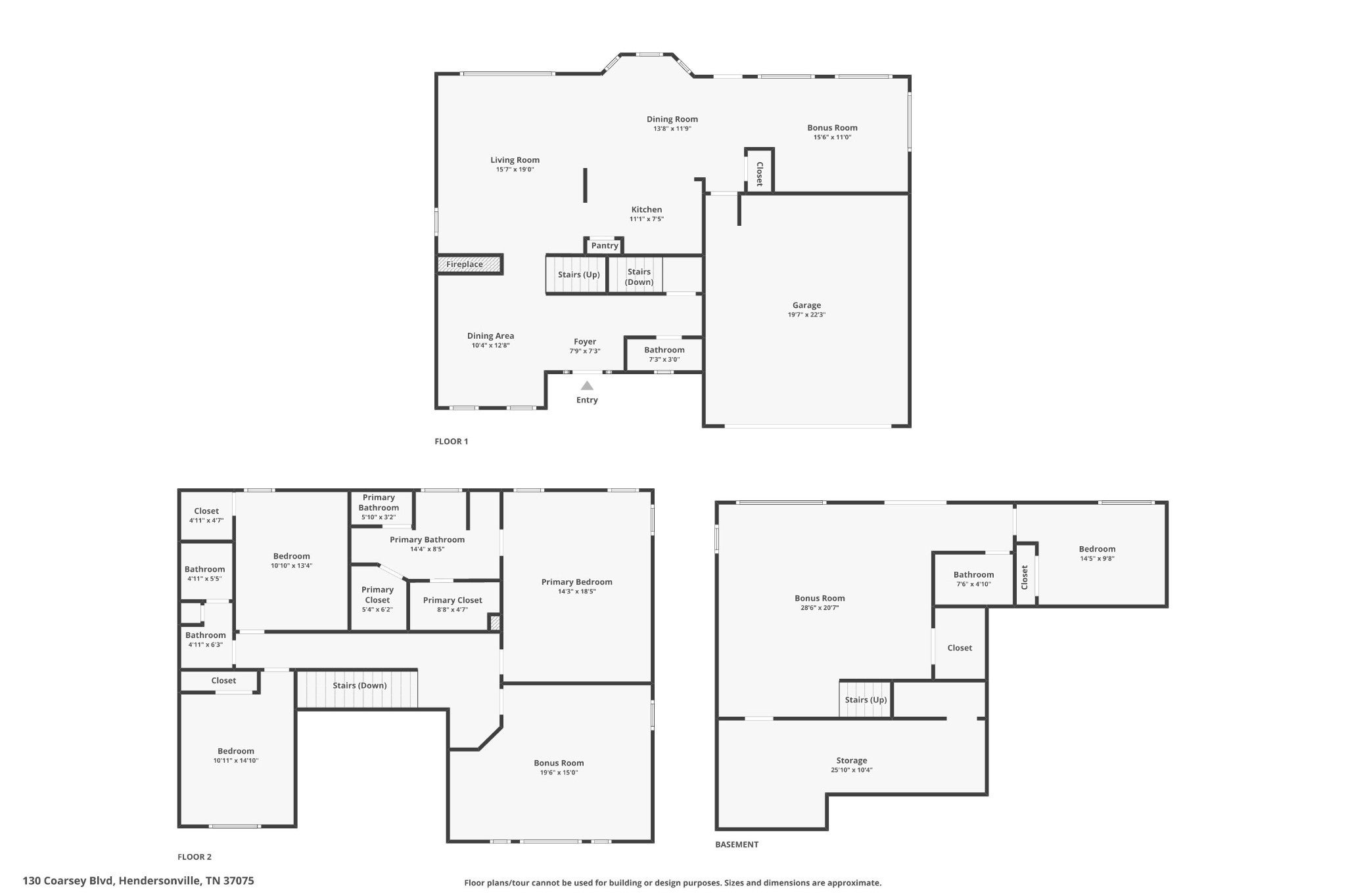
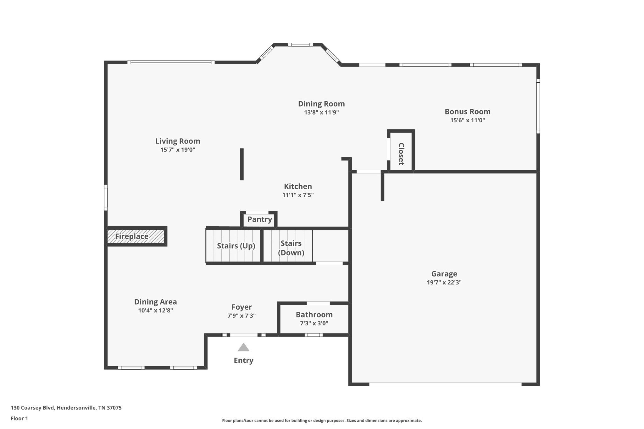
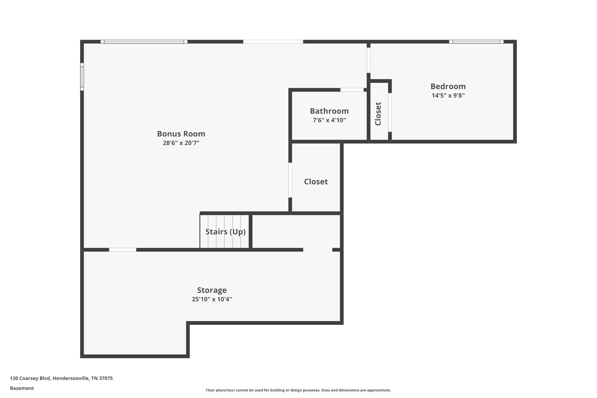
Beautifully renovated 4-bedroom, 3.5-bath home offering modern updates and flexible living space. The finished basement includes an additional bedroom and full bath—ideal for guests, a home office, or multi-generational living. Enjoy outdoor entertaining on the brand-new deck, and take advantage of the convenient location just a short walk to the neighborhood pool near the lake. This move-in-ready home combines comfort, style, and an exceptional setting.

Essential Information

  • MLS® #:
    3071205
  • Price:
    $589,900
  • Bedrooms:
    4
  • Bathrooms:
    3.50
  • Full Baths:
    3
  • Half Baths:
    1
  • Square Footage:
    3,340
  • Acres:
    0.22
  • Year Built:
    2000
  • Type:
    Residential
  • Sub-Type:
    Single Family Residence
  • Style:
    Colonial
  • Status:
    Under Contract - Showing

Community Information

  • Address:
    130 Coarsey Blvd
  • Subdivision:
    Chesapeake Harbor Se
  • City:
    Hendersonville
  • County:
    Sumner County, TN
  • State:
    TN
  • Zip Code:
    37075

Amenities

  • Amenities:
    Playground, Pool
  • Utilities:
    Electricity Available, Natural Gas Available, Water Available, Cable Connected
  • Parking Spaces:
    2
  • # of Garages:
    2
  • Garages:
    Attached

Interior

  • Interior Features:
    Ceiling Fan(s), In-Law Floorplan, Open Floorplan, Walk-In Closet(s)
  • Appliances:
    Built-In Gas Oven, Built-In Gas Range, Dishwasher, Disposal, Microwave, Refrigerator
  • Heating:
    Central, Natural Gas
  • Cooling:
    Central Air, Electric
  • Fireplace:
    Yes
  • # of Fireplaces:
    1
  • # of Stories:
    3

Exterior

  • Exterior Features:
    Balcony
  • Construction:
    Brick, Vinyl Siding

School Information

  • Elementary:
    Walton Ferry Elementary
  • Middle:
    V G Hawkins Middle School
  • High:
    Hendersonville High School

Additional Information

  • Date Listed:
    January 2nd, 2026
  • Days on Market:
    2

Listing Details

  • Listing Office:
    Exp Realty

The data relating to real estate for sale on this web site comes in part from the Internet Data Exchange Program of RealTracs Solutions. Real estate listings held by brokerage firms other than Botsko Properties Inc. are marked with the Internet Data Exchange Program logo or thumbnail logo and detailed information about them includes the name of the listing brokers.

Disclaimer: All information is believed to be accurate but not guaranteed and should be independently verified. All properties are subject to prior sale, change or withdrawal.

Copyright 2026 RealTracs Solutions.

Listing information last updated on January 22nd, 2026 at 1:54am CST.