My Search Tools:

$1,450,000 - 1610 County Hospital Rd, Nashville

-
Bedrooms
-
Baths
N/A
SQ. Feet
1.1
Acres

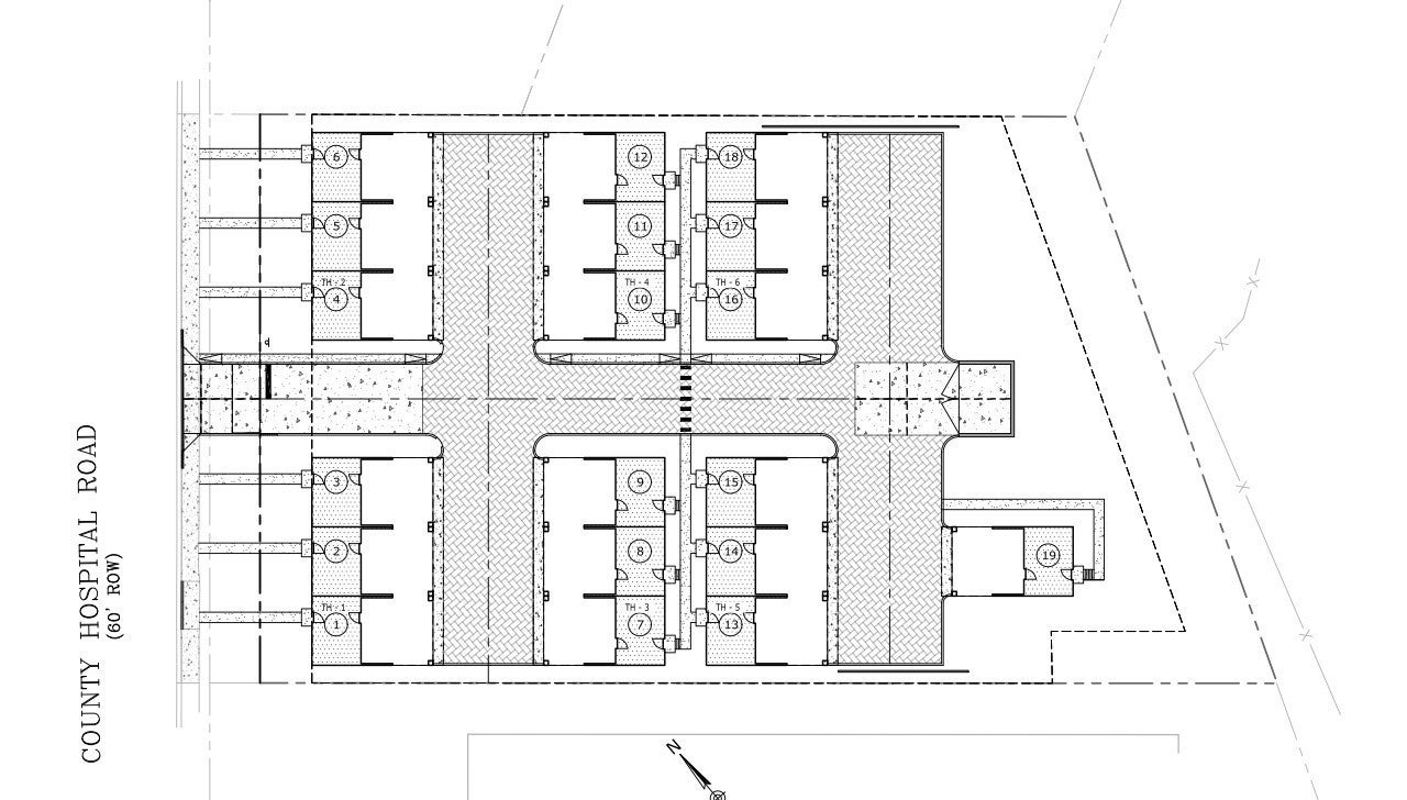
Selling Fully Entitled Infill Development site for 19 Units, 1.1 Acre Zoned CS on major and collector, NOO-STR Eligible in North Nashville / Bordeaux. Excellent Site. Complete with Full Engineering, W/S Capacities, Stamped and Approved Grading and Utility Plans, full Architectural Plans. Minutes from Downtown and the City's best attractions and amenities. Grandfathered Private Sewer, Gravity Tap in Rear, Water in Street, Minimum Grading, Simplified Utilities. Build 1800 sqft 4 Bed / 3.5 bath units for <$140 a ft Vertical + $55k a pad horizontal. Guaranteed unobstructed Downtown and Scenic Views. Multiple uses. Very flexible commercial service zoninf. Bring all Offers. Please reach out with any questions. Docs and Project Folder Link in Media Section. Owner / Agent. Taxes to be Determined.

Essential Information

  • MLS® #:
    3050236
  • Price:
    $1,450,000
  • Bathrooms:
    0.00
  • Acres:
    1.10
  • Type:
    Land
  • Status:
    Active

Community Information

  • Address:
    1610 County Hospital Rd
  • Subdivision:
    Hyde Park
  • City:
    Nashville
  • County:
    Davidson County, TN
  • State:
    TN
  • Zip Code:
    37218

Amenities

  • Utilities:
    Water Available
  • View:
    Bluff, Valley, City, River

Exterior

  • Lot Description:
    Views

School Information

  • Elementary:
    Cumberland Elementary
  • Middle:
    Haynes Middle
  • High:
    Whites Creek High

Additional Information

  • Date Listed:
    November 24th, 2025
  • Days on Market:
    97
  • Zoning:
    CS

Listing Details

  • Listing Office:
    Exp Realty

The data relating to real estate for sale on this web site comes in part from the Internet Data Exchange Program of RealTracs Solutions. Real estate listings held by brokerage firms other than Botsko Properties Inc. are marked with the Internet Data Exchange Program logo or thumbnail logo and detailed information about them includes the name of the listing brokers.

Disclaimer: All information is believed to be accurate but not guaranteed and should be independently verified. All properties are subject to prior sale, change or withdrawal.

Copyright 2026 RealTracs Solutions.

Listing information last updated on March 17th, 2026 at 6:53am CDT.