My Search Tools:

$2,199,000 - 107 Brookfield Ave, Nashville

4
Bedrooms
3
Baths
3,504
SQ. Feet
0.49
Acres

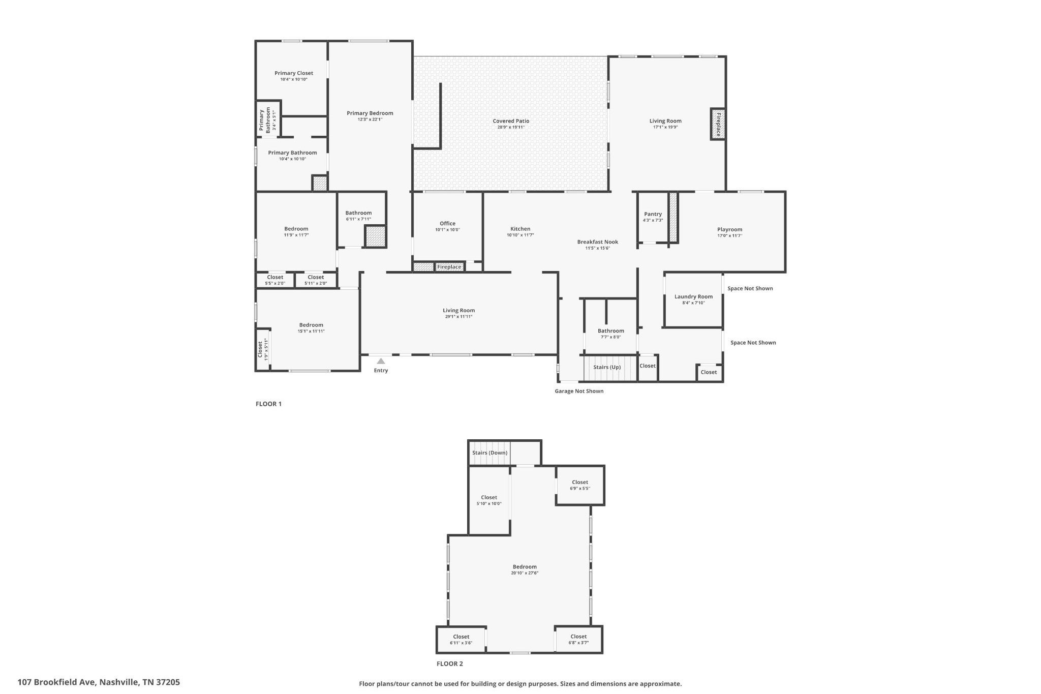
Discover effortless living in this beautifully renovated Highlands of Belle Meade home, perfectly situated in the coveted Julia Green Elementary school district. Blending modern comfort with timeless style, this 4-bed, 3-bath residence offers an ideal layout and premium upgrades throughout. A fabulous floorplan with bedrooms separated from entertaining areas. The layout allows many different uses of space with opportunity for a 5th bedroom and or a home office. Step inside to warm hardwood floors, abundant natural light, and a crisp, clean kitchen designed for both everyday living and entertaining. The spacious primary suite is a true retreat—complete with a generous wardrobe, and direct access to the private backyard with a sparkling saltwater pool. A brand-new, oversized two-car garage provides exceptional storage and features a finished bonus room above—perfect for a home office, studio, or guest space. Outside, the fully privacy-fenced backyard has been transformed with new landscaping and hardscaping, creating a serene oasis for relaxing or hosting. A newly added circle driveway adds convenience and curb appeal. Thoughtfully updated and move-in ready, this exceptional property offers the best of west side living—comfort, style, and convenience in one of Nashville’s most sought-after neighborhoods. From the new windows to a new roof, irrigation and whole home water filtration system, new ductwork and HVACs, a tankless water heater and so much more, be sure to review the improvements list provided in media along with a 3D tour.

Essential Information

  • MLS® #:
    3049858
  • Price:
    $2,199,000
  • Bedrooms:
    4
  • Bathrooms:
    3.00
  • Full Baths:
    3
  • Square Footage:
    3,504
  • Acres:
    0.49
  • Year Built:
    1952
  • Type:
    Residential
  • Sub-Type:
    Single Family Residence
  • Style:
    Traditional
  • Status:
    Active

Community Information

  • Address:
    107 Brookfield Ave
  • Subdivision:
    Highlands Of Belle Meade
  • City:
    Nashville
  • County:
    Davidson County, TN
  • State:
    TN
  • Zip Code:
    37205

Amenities

  • Utilities:
    Electricity Available, Water Available
  • Parking Spaces:
    4
  • # of Garages:
    2
  • Garages:
    Garage Faces Side, Circular Driveway, Driveway, Parking Pad, Paved
  • Has Pool:
    Yes
  • Pool:
    In Ground

Interior

  • Interior Features:
    Bookcases, Built-in Features, Ceiling Fan(s), Extra Closets, Pantry, Redecorated, Walk-In Closet(s)
  • Appliances:
    Electric Oven, Gas Range, Dishwasher, Disposal, Microwave, Stainless Steel Appliance(s)
  • Heating:
    Central
  • Cooling:
    Central Air, Electric
  • Fireplace:
    Yes
  • # of Fireplaces:
    2
  • # of Stories:
    2

Exterior

  • Lot Description:
    Level
  • Roof:
    Asphalt
  • Construction:
    Brick, Fiber Cement

School Information

  • Elementary:
    Julia Green Elementary
  • Middle:
    John Trotwood Moore Middle
  • High:
    Hillsboro Comp High School

Additional Information

  • Date Listed:
    November 22nd, 2025
  • Days on Market:
    30

Listing Details

  • Listing Office:
    Compass Re

The data relating to real estate for sale on this web site comes in part from the Internet Data Exchange Program of RealTracs Solutions. Real estate listings held by brokerage firms other than Botsko Properties Inc. are marked with the Internet Data Exchange Program logo or thumbnail logo and detailed information about them includes the name of the listing brokers.

Disclaimer: All information is believed to be accurate but not guaranteed and should be independently verified. All properties are subject to prior sale, change or withdrawal.

Copyright 2025 RealTracs Solutions.

Listing information last updated on December 23rd, 2025 at 12:23pm CST.