My Search Tools:

$459,900 - 119 Cedar Hill Dr, Waverly

4
Bedrooms
3
Baths
3,800
SQ. Feet
2
Acres

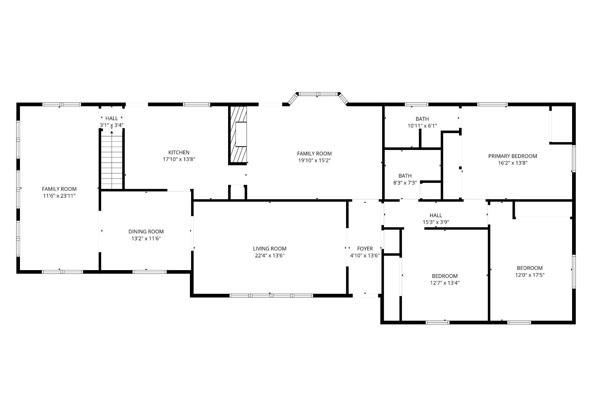
Reduced!! Experience comfort, space, and versatility in this 3,800 sq ft brick ranch situated on 2 beautiful acres in an established Waverly neighborhood. Just one hour west of Nashville, this 4-bedroom, 3-bath residence offers refined main-level living with hardwood floors and multiple gathering spaces, including a formal living room, a formal dining room, and an inviting den with a gas log fireplace. A bright sunroom—featuring new windows installed in 2020—provides an additional space to relax and enjoy views of the grounds. The roof was also replaced in 2020 along with siding and seamless gutters with gutter guards. There is a whole-home natural gas Generac generator for added peace of mind. The finished basement is currently being used by the sellers as a 4th bedroom with its own living area with a fireplace and full bath. It also includes a separate room offering excellent potential to be finished out into a full kitchen with plumbing and electrical already in place, —ideal for a mother-in-law suite, multigenerational living, or a fully independent living space. The basement also provides an attached 2-car garage, durable tile flooring and plenty of additional storage! Outdoors, the paved driveway and expansive yard create a welcoming first impression. Ideally located near the Tennessee National Wildlife Refuge, the Tennessee River, and the Buffalo River, this property offers convenient access to some of Middle Tennessee’s best boating, fishing, and outdoor recreation—delivering a serene lifestyle with everyday convenience.

Essential Information

  • MLS® #:
    3048683
  • Price:
    $459,900
  • Bedrooms:
    4
  • Bathrooms:
    3.00
  • Full Baths:
    3
  • Square Footage:
    3,800
  • Acres:
    2.00
  • Year Built:
    1968
  • Type:
    Residential
  • Sub-Type:
    Single Family Residence
  • Status:
    Active

Community Information

  • Address:
    119 Cedar Hill Dr
  • Subdivision:
    Cedar Hill
  • City:
    Waverly
  • County:
    Humphreys County, TN
  • State:
    TN
  • Zip Code:
    37185

Amenities

  • Utilities:
    Natural Gas Available, Water Available
  • Parking Spaces:
    2
  • # of Garages:
    2
  • Garages:
    Attached

Interior

  • Interior Features:
    High Speed Internet
  • Appliances:
    Built-In Electric Oven, Built-In Electric Range, Dishwasher
  • Heating:
    Central, Natural Gas
  • Cooling:
    Central Air
  • Fireplace:
    Yes
  • # of Fireplaces:
    2
  • # of Stories:
    1

Exterior

  • Construction:
    Brick

School Information

  • Elementary:
    Waverly Elementary
  • Middle:
    Waverly Jr High School
  • High:
    Waverly Central High School

Additional Information

  • Date Listed:
    November 19th, 2025
  • Days on Market:
    60

Listing Details

  • Listing Office:
    Rushton & Co.

The data relating to real estate for sale on this web site comes in part from the Internet Data Exchange Program of RealTracs Solutions. Real estate listings held by brokerage firms other than Botsko Properties Inc. are marked with the Internet Data Exchange Program logo or thumbnail logo and detailed information about them includes the name of the listing brokers.

Disclaimer: All information is believed to be accurate but not guaranteed and should be independently verified. All properties are subject to prior sale, change or withdrawal.

Copyright 2026 RealTracs Solutions.

Listing information last updated on January 21st, 2026 at 4:54am CST.