My Search Tools:

$995 - 1317 16th Ave S, Nashville

-
Bedrooms
-
Baths
N/A
SQ. Feet
0.2
Acres

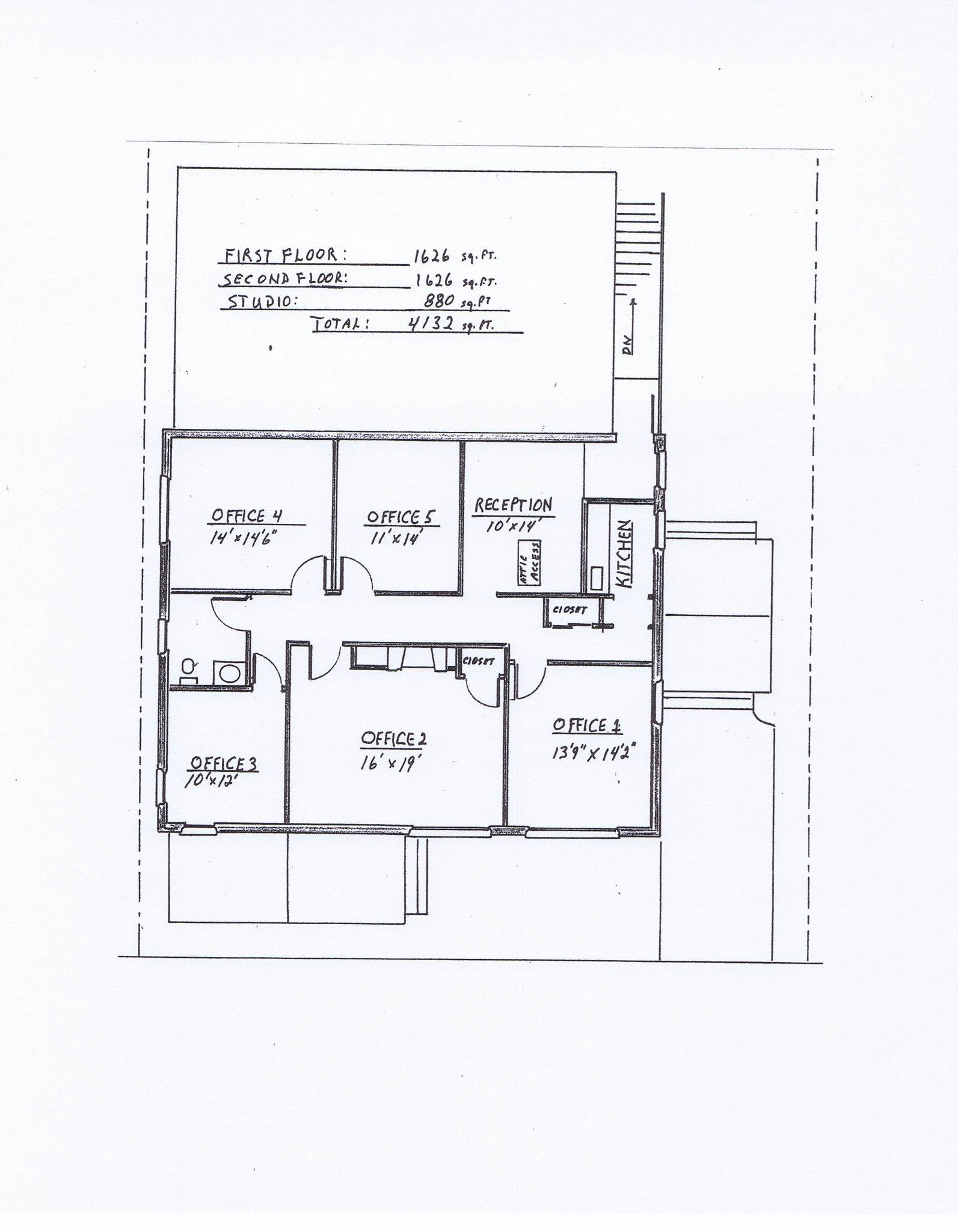
Music Row Office space for lease. Prime location on 16th Ave S. Private upstairs office available. Sunny corner office, suite #4. Be a part of a vibrant community of small business owners on Music Row! Common areas include reception area, kitchen, and 1/2ba. Perfect for Accountants, Attorneys, Consultants, Therapists or small business of any kind. Rent: $995 Security deposit: $995 1-year lease Available Nov 1st. Rent includes: *Private office #4 *Electric *Gas *Water *Guest Wifi *1x week janitorial of common areas *Grounds maintenance *FREE parking

Essential Information

  • MLS® #:
    3037534
  • Price:
    $995
  • Bathrooms:
    0.00
  • Acres:
    0.20
  • Year Built:
    1920
  • Type:
    Commercial Lease
  • Sub-Type:
    Office
  • Status:
    Active

Community Information

  • Address:
    1317 16th Ave S
  • City:
    Nashville
  • County:
    Davidson County, TN
  • State:
    TN
  • Zip Code:
    37212

Additional Information

  • Date Listed:
    October 31st, 2025
  • Days on Market:
    46
  • Zoning:
    ORI

Listing Details

  • Listing Office:
    Music Row Realty

The data relating to real estate for sale on this web site comes in part from the Internet Data Exchange Program of RealTracs Solutions. Real estate listings held by brokerage firms other than Botsko Properties Inc. are marked with the Internet Data Exchange Program logo or thumbnail logo and detailed information about them includes the name of the listing brokers.

Disclaimer: All information is believed to be accurate but not guaranteed and should be independently verified. All properties are subject to prior sale, change or withdrawal.

Copyright 2025 RealTracs Solutions.

Listing information last updated on December 16th, 2025 at 6:24pm CST.