My Search Tools:

$7,450,000 - 1809 Old Hickory Blvd, Brentwood

6
Bedrooms
8
Baths
10,702
SQ. Feet
2
Acres

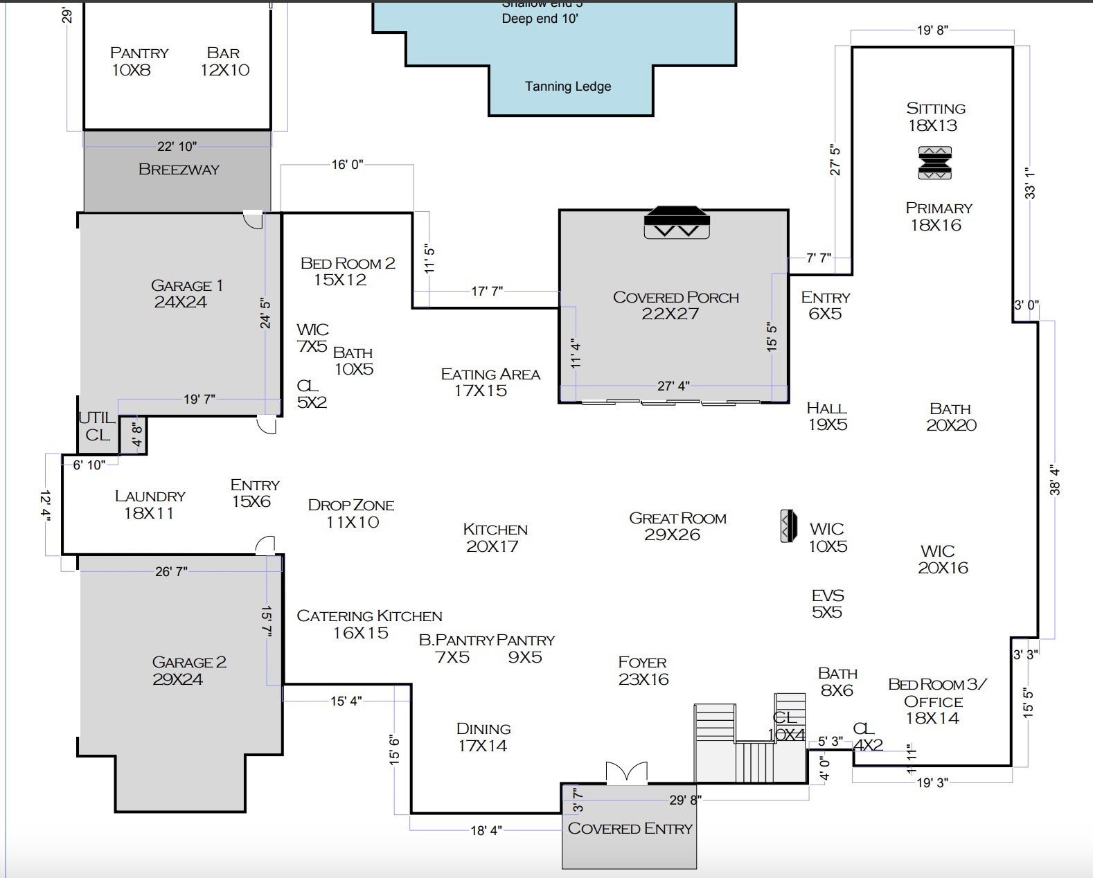
Set on 2 private acres, this resort style Craftsman Residential home built by Rogers Build is designed for both refined entertaining and the ease of everyday life. The chef’s kitchen showcases a handmade Lacanche range from France, SubZero refrigeration columns, dual sinks with dishwashers, and a marble-clad wine bar. The great room’s dramatic pocketing slider extends to an outdoor living room, complete with one of five fireplaces overlooking the Ozone pool while calming water features can be heard from inside. A separate 793 sqft pool house overlooking the Ozone pool featuring an indoor/outdoor bar with a full bath, kitchenette, and laundry serves guests perfectly or can be built out as a wellness/ fitness studio complete with an extra large 10' x 8' storage closet that can easily be converted to built-in sauna (see floorplans). Third floor SF represents the first floor conditioned space of the Pool House. The pool house can be built upon to create a larger space within the expansive 2 acre lot if desired. Retreat to the main-level primary suite with its dual-sided fireplace, light-filled sitting room, spa bath with heated floors, dual water closets, 24' ceiling, and an expansive two-room dressing closet. Additional spaces include an office, guest suite, gym, media/kids’ den, and dual laundry rooms. Ft. - 7” White Oak Floors, Custom Panel White Oak Cabinetry w SubZero appliances, Designer fixtures from Visual Comfort, Arteriors, Currey & Co, Dual room dressing closet features additional 10 x 6 primary closet space to customize, True 4 car garage w guest parking, Upgraded HVAC Air Filtration in First Floor Main Unit with Nest Smart-Home Thermostats in all areas, Additional unfinished attic space for additional 425 sq ft (see floorplans), Butler’s Kitchen includes additional Fridge/ Freezer, sink, dishwasher, and custom cabinetry. Plenty of space for additional cooktop and oven/ wall oven, Elevator Hoistlift w 2 stop chase, heated radiant flooring in primary bath

Essential Information

  • MLS® #:
    2998550
  • Price:
    $7,450,000
  • Bedrooms:
    6
  • Bathrooms:
    8.00
  • Full Baths:
    7
  • Half Baths:
    2
  • Square Footage:
    10,702
  • Acres:
    2.00
  • Year Built:
    2023
  • Type:
    Residential
  • Sub-Type:
    Single Family Residence
  • Style:
    Contemporary
  • Status:
    Active

Community Information

  • Address:
    1809 Old Hickory Blvd
  • Subdivision:
    Laurelwood
  • City:
    Brentwood
  • County:
    Davidson County, TN
  • State:
    TN
  • Zip Code:
    37027

Amenities

  • Utilities:
    Water Available
  • Parking Spaces:
    13
  • # of Garages:
    4
  • Garages:
    Garage Faces Side, Parking Pad, Paved

Interior

  • Appliances:
    Double Oven, Gas Oven, Built-In Gas Range, Dishwasher, Disposal, Freezer, Ice Maker, Microwave, Refrigerator
  • Heating:
    Central
  • Cooling:
    Central Air
  • # of Stories:
    2

Exterior

  • Lot Description:
    Level, Private
  • Construction:
    Stone, Wood Siding

School Information

  • Elementary:
    Percy Priest Elementary
  • Middle:
    John Trotwood Moore Middle
  • High:
    Hillsboro Comp High School

Additional Information

  • Date Listed:
    October 2nd, 2025
  • Days on Market:
    72

Listing Details

  • Listing Office:
    Compass Re

The data relating to real estate for sale on this web site comes in part from the Internet Data Exchange Program of RealTracs Solutions. Real estate listings held by brokerage firms other than Botsko Properties Inc. are marked with the Internet Data Exchange Program logo or thumbnail logo and detailed information about them includes the name of the listing brokers.

Disclaimer: All information is believed to be accurate but not guaranteed and should be independently verified. All properties are subject to prior sale, change or withdrawal.

Copyright 2025 RealTracs Solutions.

Listing information last updated on December 13th, 2025 at 9:24pm CST.