My Search Tools:

$2,900,000 - 3214 Charlotte Ave, Nashville

-
Bedrooms
-
Baths
N/A
SQ. Feet
0.42
Acres

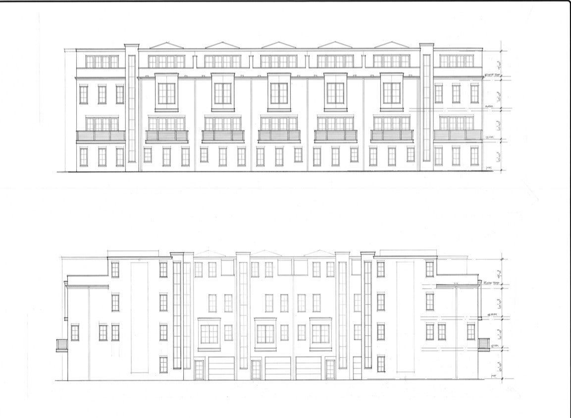
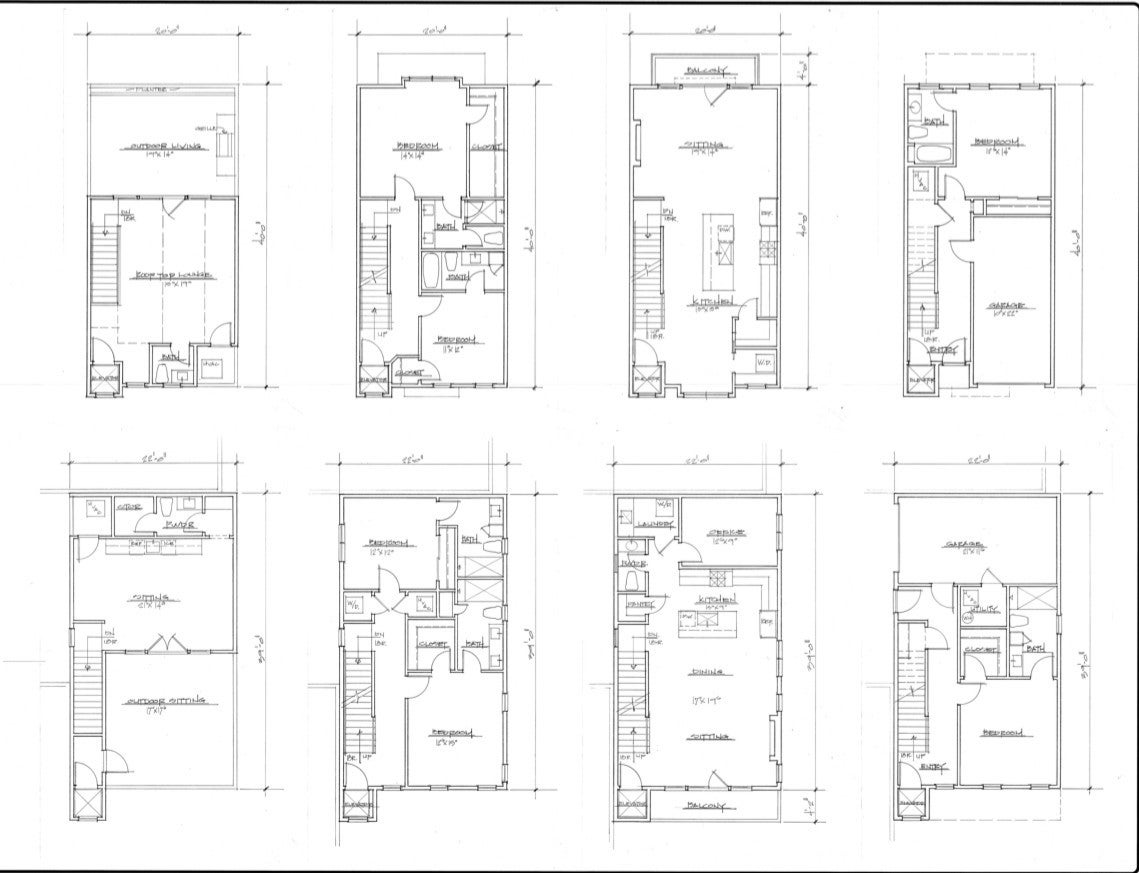
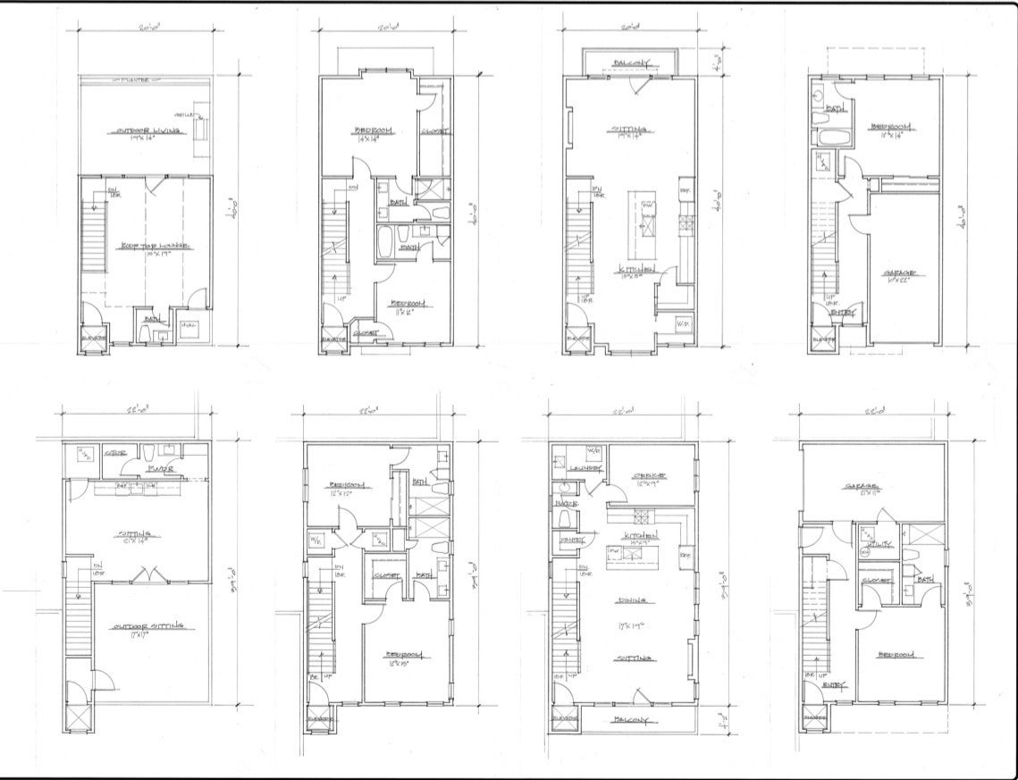
Land to Build 8-9 Townhomes. Townhomes can be 3 story with rooftop. Preliminary architectural plans show 9 townhomes with 1 car garage. Skyline views of the Cityscape. Location near L&L Marketplace, downtown Nashville, Sylvan Park, Eateries, restaurants Lounges. CS Zone with Adaptive Use Residential Permissible for Short Term Rental Use. Zoning allows for Townhomes, Boutique Multifamily Build, and general Commercial use. Buyer/Agent to verify all pertinent information. No Construction Plans included. Build by Right in Commercial Zone.

Essential Information

  • MLS® #:
    2991002
  • Price:
    $2,900,000
  • Bathrooms:
    0.00
  • Acres:
    0.42
  • Year Built:
    1985
  • Type:
    Commercial Sale
  • Sub-Type:
    Unimproved Land
  • Status:
    Active

Community Information

  • Address:
    3214 Charlotte Ave
  • City:
    Nashville
  • County:
    Davidson County, TN
  • State:
    TN
  • Zip Code:
    37209

Additional Information

  • Date Listed:
    September 8th, 2025
  • Days on Market:
    61
  • Zoning:
    CS

Listing Details

  • Listing Office:
    Coldwell Banker Commercial Legacy Group

The data relating to real estate for sale on this web site comes in part from the Internet Data Exchange Program of RealTracs Solutions. Real estate listings held by brokerage firms other than Botsko Properties Inc. are marked with the Internet Data Exchange Program logo or thumbnail logo and detailed information about them includes the name of the listing brokers.

Disclaimer: All information is believed to be accurate but not guaranteed and should be independently verified. All properties are subject to prior sale, change or withdrawal.

Copyright 2025 RealTracs Solutions.

Listing information last updated on November 9th, 2025 at 6:09pm CST.