My Search Tools:

$1,299,900 - 706 N Main St, Columbia

-
Bedrooms
-
Baths
N/A
SQ. Feet
0.27
Acres

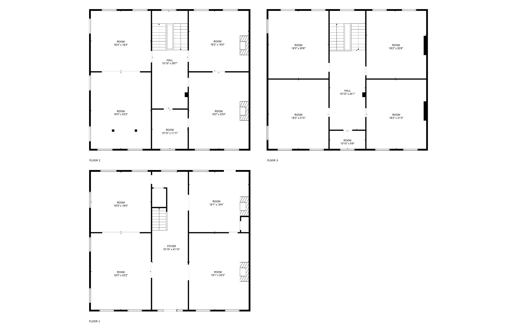
AMAZING NEW PRICE! First time on the open market! The CROWN JEWEL OF COLUMBIA, the NELSON HOUSE HOTEL, is looking for the perfect buyer. Become part of history as you restore one of the most historic and important buildings in Maury County. The property is ready to be brought back to life as a boutique hotel (there’s no other in downtown Columbia), a restaurant, a meeting place, or even a fantastic primary residence. Sitting within one block from the square, it is ready to rejoin our restored and beloved downtown. Enter through the arched entry flanked by stone planters and imagine what could be. You’ll note original brick, wood flooring, a beautiful staircase, paneled doorway, transoms, fireplaces, metal surrounds, all waiting to be reconditioned and put to use. The property consists of the hotel, asphalt parking lot on the North side, and a separate small brick building sitting directly behind the hotel, which is currently being used as storage for the old doors, trim, and mantles that were removed during the start of renovation. The parking lot on the North side is a buildable lot which allows up to a 5-level structure. Please note, the following additional info has been uploaded: Survey and engineering letter provided in the document area. A copy of the professional floor plans in pictures and in documents. Also see links for historical stories of the property.

Essential Information

  • MLS® #:
    2779812
  • Price:
    $1,299,900
  • Bathrooms:
    0.00
  • Acres:
    0.27
  • Year Built:
    1828
  • Type:
    Commercial Sale
  • Sub-Type:
    Mixed Use
  • Status:
    Active

Community Information

  • Address:
    706 N Main St
  • City:
    Columbia
  • County:
    Maury County, TN
  • State:
    TN
  • Zip Code:
    38401

Additional Information

  • Date Listed:
    January 17th, 2025
  • Days on Market:
    303
  • Zoning:
    GBD

Listing Details

  • Listing Office:
    Nashville Realty Group

The data relating to real estate for sale on this web site comes in part from the Internet Data Exchange Program of RealTracs Solutions. Real estate listings held by brokerage firms other than Botsko Properties Inc. are marked with the Internet Data Exchange Program logo or thumbnail logo and detailed information about them includes the name of the listing brokers.

Disclaimer: All information is believed to be accurate but not guaranteed and should be independently verified. All properties are subject to prior sale, change or withdrawal.

Copyright 2025 RealTracs Solutions.

Listing information last updated on November 18th, 2025 at 8:24am CST.